Back to results

Retail/Shop To Let, Glasgow

Retail/Shop in Glasgow
Retail/Shop in Glasgow
Retail/Shop in Glasgow
Retail/Shop in Glasgow
POA

The Victoria,Battlefield Road, Glasgow, G42 9QH

Type Retail/Shop
Status Under Offer
Size 410 - 4,505 sq ft

Key Features

  • Eleven commercial units split over two blocks
  • Located in the Battlefield area of Glasgow's south side
  • Units ranging from 38 sq.m (410 sq.ft) - 419 sq.m (4,505 sq.ft)
  • New FRI leases available
  • Suitable for a variety of commercial uses
  • Timing: Spring 2023

Property Details

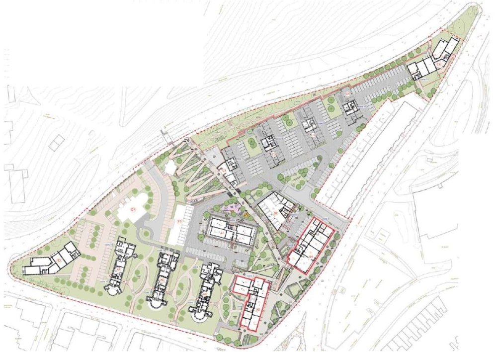
The Victoria is a truly unique development in the heart of Glasgow. The comprehensive redevelopment of the former Victoria Infirmary will see the creation of a new community with over 400 new homes, commercial space, public realm and green space.

Located in the Langside area of the south side adjacent to Battlefield Cross the development will add to the already thriving commercial and residential activity in the area. The development is situated adjacent to the New Victoria Hospital, Langside College, and close to Hampden Park

The Subjects Comprise A New Build Development Of 11 Commercial Units Split Over Two Blocks.

Units Are Available In A Size Range From 38sq.m (410 Sqft) Up To 419 Sq.m, (4,505 Sq.ft.), Although There Is The Opportunity To Combine Units To Create Up To 343 Sq.m. (3,690 Sq.ft.).

All Units Will Have Frontages Either Into The Heart Of The Development Or Onto Battlefield Road Or Grange Road Offering Excellent Visibility To Passing Pedestrian And Vehicular Traffic.
Graham & Sibbald-Glasgow
Graham & Sibbald-Glasgow View all properties
Retail/Shop To Let, Glasgow
POA

The Victoria,Battlefield Road, Glasgow, G42 9QH

Retail/Shop · Under Offer · 410 - 4,505 sq ft

Property ID: 110308

Send Enquiry
Graham & Sibbald-Glasgow
Graham & Sibbald-Glasgow View all properties

Make an Enquiry

Boxpod will only use your details to send an enquiry to the advertiser and prompt a response. By clicking Send Enquiry, you agree to Boxpod's Privacy Policy.

Make an Enquiry

Graham & Sibbald-Glasgow
Graham & Sibbald-Glasgow

Boxpod will only use your details to send an enquiry to the advertiser and prompt a response. By clicking Send Enquiry, you agree to Boxpod's Privacy Policy.

Call