Industrial Unit To Let, Great Yarmouth
4 photos
£5,417 / month
£65,000 pa
New Light Industrial Unit,Crittens Road, Great Yarmouth, NR31 0AG
Type
Industrial Unit
Status
Available
Size
9,905 sq ft
Property Details
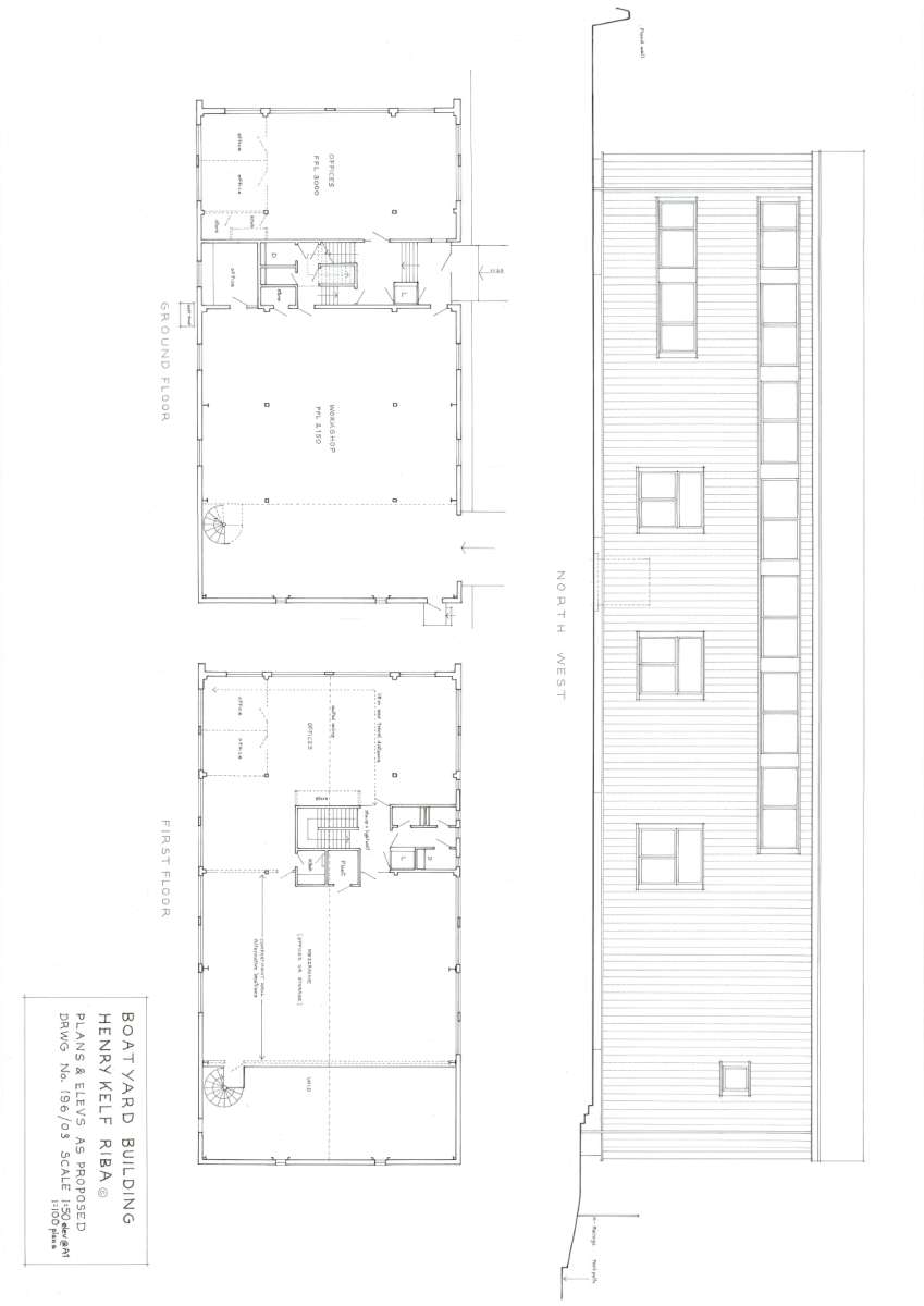
A Brand New High Specification Light Industrial Unit Which Forms Part Of A High-tech Business Park With Attractive Views Over The River Yare. The Workshop Benefits From A Mezzanine Floor, High-bay Lighting, Sectional Electric Loading Door (4.3m (w) By 4.9m (h) And A Minimum Eaves Height Of 6.6m.
The Ground Floor Office Is Of A High Specification And Benefits From Led Lighting, Perimeter Trunking, Carpet Tiles And Data Cabling. Externally, There Are Circa 17 Car Parking Spaces And A Loading Apron.
The Ground Floor Office Is Of A High Specification And Benefits From Led Lighting, Perimeter Trunking, Carpet Tiles And Data Cabling. Externally, There Are Circa 17 Car Parking Spaces And A Loading Apron.
Location
Arnolds Keys
View all properties
Make an Enquiry
Arnolds Keys