Retail/Shop To Let, Witney
2 photos
POA
Windrush Place,Centenary Way, Witney, OX29 7BU
Type
Retail/Shop
Status
Under Offer
Size
1,238 - 3,595 sq ft
Property Details
Witney is a large market town located in West Oxfordshire, approximately 12 miles to the west of Oxford and approximately 29 miles from Cheltenham via the A40. Being close to the A40 benefits from good access to the A34 dual carriageway, M4, M5 and M40 motorways.
Witney is regarded as the main commercial hub in West Oxfordshire providing occupiers and residents a wealth of amenities including Marriots Walk shopping centres, cinema, supermarkets and restaurants. These in turn service the large residential population who work in the town and further afield.
The new neighbourhood scheme development is to be located in the centre of the new 1,000 home West Witney residential area,
now largely completed, adjacent to the new Primary School.
Pre-letting Opportunities - Target Completion May 2026
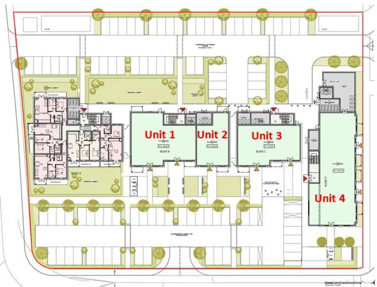
Neighbourhood Development Of Four Retail Units Located In The Centre Of The New 1,000 Home West Witney Residential Area, With Nearly 850 Dwellings Completed And Being Adjacent To The New Primary School.
Shared Retail And School Parking Of 43 Spaces Is Located On The South Side Of The Units.
2 Units Remaining From 1,238 Sq.ft To 3,595 Sq.ft.
Envisaged Uses:
Unit 1 - Retail, Commercial (subject To Terms: Could Be Joined With Unit 2, And Outdoor Space )
Unit 2 - Retail, Commercial (subject To Terms: Could Be Joined With Unit 1)
Unit 3 - Café (under Offer)
Unit 4 - Convenience Store (under Offer)
The Construction Is Under Way With Anticipated Handover Of Units Q1/q2 2025 (tbc)
Witney Is A Large Market Town Located In West Oxfordshire, Approximately 12 Miles To The West Of Oxford And Approximately 29 Miles From Cheltenham Via The A40. Being Close To The A40 Benefits From Good Access To The A34 Dual Carriageway, M4, M5 And M40 Motorways.
Witney Is A Large Market Town Located In West Oxfordshire, Approximately 12 Miles To The West Of Oxford And Approximately 29 Miles From Cheltenham Via The A40. Being Close To The A40 Benefits From Good Access To The A34 Dual Carriageway, M4, M5 And M40 Motorways.
Witney Is Regarded As The Main Commercial Hub In West Oxfordshire Providing Occupiers And Residents A Wealth Of Amenities Including Marriots Walk Shopping Centres, Cinema, Supermarkets And Restaurants. These In Turn Service The Large Residential Population Who Work In The Town And Further Afield.
The New Neighbourhood Scheme Development Is To Be Located In The Centre Of The New 1,000 Home West Witney Residential Area,
Now Largely Completed, Adjacent To The New Primary School.
Witney is regarded as the main commercial hub in West Oxfordshire providing occupiers and residents a wealth of amenities including Marriots Walk shopping centres, cinema, supermarkets and restaurants. These in turn service the large residential population who work in the town and further afield.
The new neighbourhood scheme development is to be located in the centre of the new 1,000 home West Witney residential area,
now largely completed, adjacent to the new Primary School.
Pre-letting Opportunities - Target Completion May 2026
Neighbourhood Development Of Four Retail Units Located In The Centre Of The New 1,000 Home West Witney Residential Area, With Nearly 850 Dwellings Completed And Being Adjacent To The New Primary School.
Shared Retail And School Parking Of 43 Spaces Is Located On The South Side Of The Units.
2 Units Remaining From 1,238 Sq.ft To 3,595 Sq.ft.
Envisaged Uses:
Unit 1 - Retail, Commercial (subject To Terms: Could Be Joined With Unit 2, And Outdoor Space )
Unit 2 - Retail, Commercial (subject To Terms: Could Be Joined With Unit 1)
Unit 3 - Café (under Offer)
Unit 4 - Convenience Store (under Offer)
The Construction Is Under Way With Anticipated Handover Of Units Q1/q2 2025 (tbc)
Witney Is A Large Market Town Located In West Oxfordshire, Approximately 12 Miles To The West Of Oxford And Approximately 29 Miles From Cheltenham Via The A40. Being Close To The A40 Benefits From Good Access To The A34 Dual Carriageway, M4, M5 And M40 Motorways.
Witney Is A Large Market Town Located In West Oxfordshire, Approximately 12 Miles To The West Of Oxford And Approximately 29 Miles From Cheltenham Via The A40. Being Close To The A40 Benefits From Good Access To The A34 Dual Carriageway, M4, M5 And M40 Motorways.
Witney Is Regarded As The Main Commercial Hub In West Oxfordshire Providing Occupiers And Residents A Wealth Of Amenities Including Marriots Walk Shopping Centres, Cinema, Supermarkets And Restaurants. These In Turn Service The Large Residential Population Who Work In The Town And Further Afield.
The New Neighbourhood Scheme Development Is To Be Located In The Centre Of The New 1,000 Home West Witney Residential Area,
Now Largely Completed, Adjacent To The New Primary School.
Location
Carter Jonas LLP
View all properties
Make an Enquiry
Carter Jonas LLP