Office For Sale, Burghclere
4 photos
POA
Harts Lane, Burghclere, RG20 9JZ
Type
Office
Status
Available
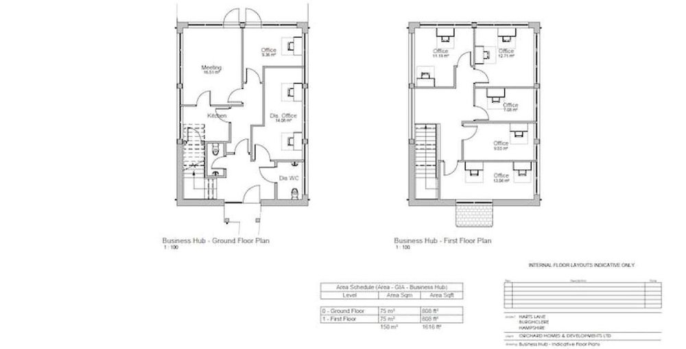
Size
808 - 1,616 sq ft
Key Features
- Good Transport Links via A34 and M3 & M4 Motorways
- Forms Part of a Residential Development Comprising of 17 Homes
- Suitable for a Number of Commerical Uses, Subject to Planning
- Affluent Village Location
Property Details
The Property Will Be A Modern Business Unit Suitable For Offices Within Use Class E Of The Town And Country Planning (use Classes) Order. Other Uses May Be Acceptable Subject To Planning.
Location
Curchod & Co
View all properties
Make an Enquiry
Curchod & Co