Retail/Shop To Let, Brentwood
4 photos
POA
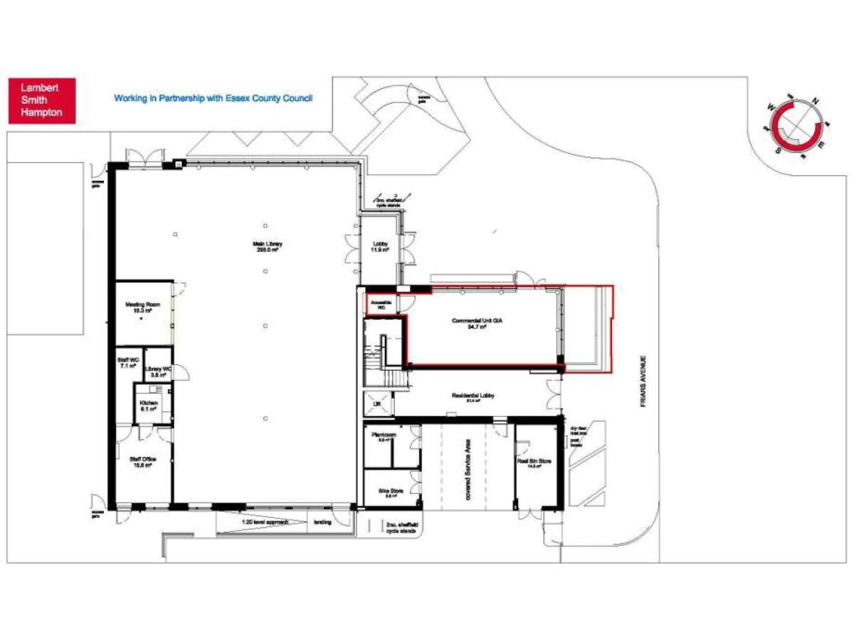
Unit 2,63 Hutton Road, Brentwood, CM15 8NJ
Type
Retail/Shop
Status
Under Offer
Size
589 sq ft
Key Features
- Newly constructed commercial unit
- Approx. 54.7m2 (GIA)
- Former Shenfield library
- Affluent commuter town
- Desirable trading pitch in sought after location
- Walking distance to Shenfield Railway Station
- Short drive to Brentwood Railway Station
Property Details
The Property Comprises A Commercial Unit As Part Of The Wider Redevelopment Of Shenfield Library, Which Benefits From A Self-contained Pedestrian Access Via The Junction Of Hutton Road And Friars Avenue.
Flexible Use Within Use Class Ea, Eb, Ec, Ee, Ef, F1b, F1e, F2b. Development Consented Under Planning Application Ref. No.: 21/01081/obs.
Flexible Use Within Use Class Ea, Eb, Ec, Ee, Ef, F1b, F1e, F2b. Development Consented Under Planning Application Ref. No.: 21/01081/obs.
Location
LSH-Chemlsford
View all properties
Make an Enquiry
LSH-Chemlsford