Retail/Shop For Sale, Falmouth
4 photos
£350,000 Freehold
20 Church Street, Falmouth, TR11 3EG
Type
Retail/Shop
Status
Available
Size
0 sq ft
Key Features
- FREEHOLD DEVELOPMENT PREMISES WITH BUILDING CONSENT & CONDITIONAL BUILDING REGULATION APPROVAL
- 2,537 SQ FT (219 SQ M)
- POPULAR TOWN CENTRE LOCATION
- SUBSTANTIAL 4-STOREY PREMISES WITH COURTYARD
- ORIGINAL PERIOD FEATURES
- EPC D (100)
Property Details
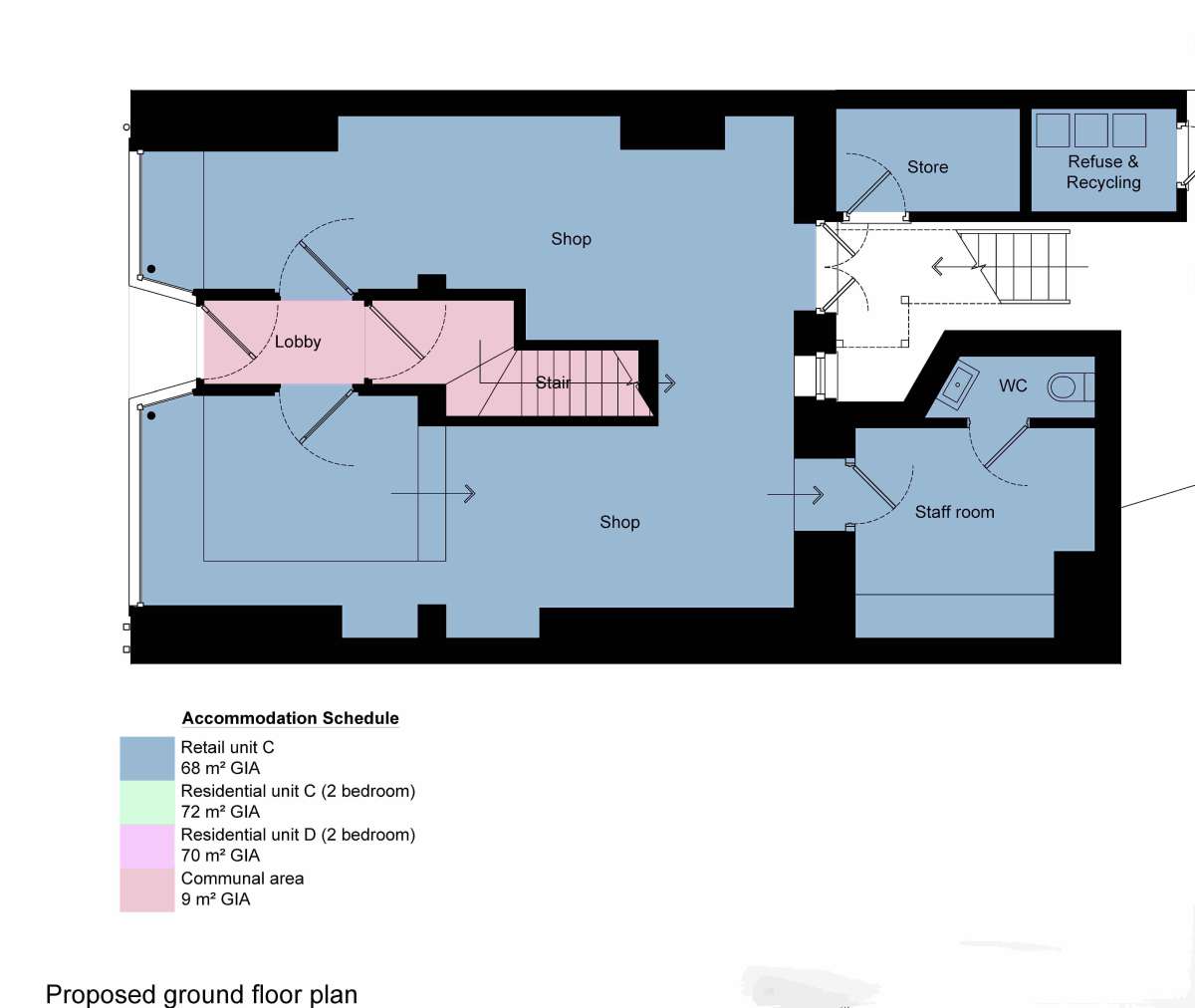
20 Church Street Is A Well Located, Grade Ii Listed Period Building Set Over Four Floors With A Small, Enclosed Courtyard To The Rear. The Property Benefits With Detailed Planning Consent To Create Either One Large Or Two Smaller Retail Units On The Ground Floor And Two X Two Bedroom Maisonettes On The Upper Floors. Building Regulations Documentation Has Also Been Prepared For The Conversion.
Location
Miller Commercial
View all properties
Make an Enquiry
Miller Commercial