Other To Let, Knaresborough

Other in Knaresborough
Other in Knaresborough
Other in Knaresborough
Other in Knaresborough
POA

Unit 8-9 Knaresborough Station,Station Road, Knaresborough, HG5 9AA

Type Other
Status Available
Size 375 sq ft

Key Features

  • Annual Station Footfall of 506,446 (1,388 per day)
  • Regular services to Leeds, York and Harrogate
  • New Lease Available
  • Suitable for service retail / other business use

Property Details

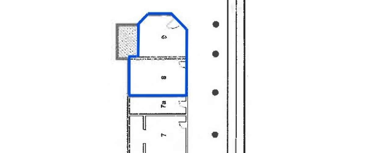
On Behalf Of Northern, An Opportunity Is Available Within The Station Buildings At Knaresborough.

The Premises Verged Blue, Form Part Of The Station Buildings And Can Be Accessed Via The York Bound Platform. The Unit Is Comprised Of Two Rooms Each With Independent Access Onto The Platform. The Premises Are Currently Used As A Picture Framer's And The Landlord Welcomes A Similar Or Alternative Business Use.

Other Occupiers At The Station Include A Licensed Bar, Cafe And Antiques/arts Centre.
Other To Let, Knaresborough
POA

Unit 8-9 Knaresborough Station,Station Road, Knaresborough, HG5 9AA

Other · Available · 375 sq ft

Property ID: 136347

Send Enquiry

Make an Enquiry

Boxpod will only use your details to send an enquiry to the advertiser and prompt a response. By clicking Send Enquiry, you agree to Boxpod's Privacy Policy.

Make an Enquiry

LSH-Leeds
LSH-Leeds

Boxpod will only use your details to send an enquiry to the advertiser and prompt a response. By clicking Send Enquiry, you agree to Boxpod's Privacy Policy.

Call