Industrial Unit To Let, Edinburgh
4 photos
POA
New Build Units,Muir Place, Edinburgh, EH54 5BF
Type
Industrial Unit
Status
Available
Size
2,000 - 38,000 sq ft
Key Features
- Design & build opportunities available up to 38,000 sq ft
- Landlord willing to adapt design to meet tenant requirements (subject to lease terms)
- Available for entry in Q1 2026.
Property Details
The subjects are located on Muir Place within Houstoun Industrial Estate , a popular
industrial hub which lies approximately two miles north east of Livingston town centre.
This well-established industrial location offers excellent transport links being in close
proximity to the M8 motorway, providing excellent connectivity to Edinburgh ( 14 miles)
and Glasgow (32 miles) and the rest of Scotland's central belt.
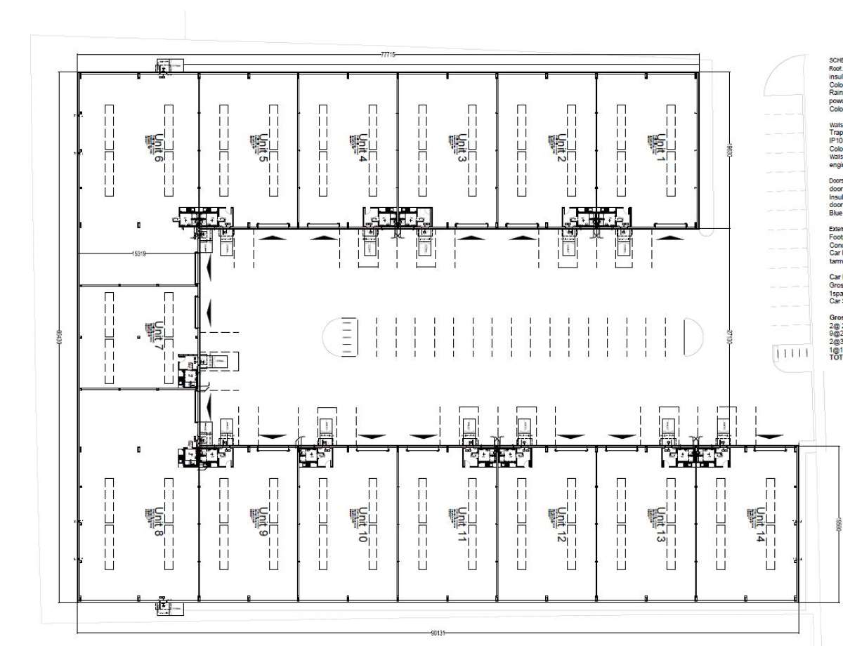
Our Client Has Planning Permission For The Erection Of 14 Modern Industrial Units (class 5)
With Car Parking (52 Spaces). Planning Reference No: 0474/ful/23.
There Are A Variety Of Units Available Ranging From 2,000 Sq Ft To 38,000 Sq Ft All Of Which
Will Offer Modern Open Plan Industrial Accommodation Accessed Via Roller Shutter Door
And Pedestrian Door And Will Benefit From Phase 3 Power And W/c Facilities.
The Developer Is Offering Design And Build Opportunities And Can Adapt The
Development To Meet The Requirements Of An Ingoing Tenant (subject To Lease Terms).
industrial hub which lies approximately two miles north east of Livingston town centre.
This well-established industrial location offers excellent transport links being in close
proximity to the M8 motorway, providing excellent connectivity to Edinburgh ( 14 miles)
and Glasgow (32 miles) and the rest of Scotland's central belt.
Our Client Has Planning Permission For The Erection Of 14 Modern Industrial Units (class 5)
With Car Parking (52 Spaces). Planning Reference No: 0474/ful/23.
There Are A Variety Of Units Available Ranging From 2,000 Sq Ft To 38,000 Sq Ft All Of Which
Will Offer Modern Open Plan Industrial Accommodation Accessed Via Roller Shutter Door
And Pedestrian Door And Will Benefit From Phase 3 Power And W/c Facilities.
The Developer Is Offering Design And Build Opportunities And Can Adapt The
Development To Meet The Requirements Of An Ingoing Tenant (subject To Lease Terms).
Location
Graham & Sibbald- Edinburgh
View all properties
Make an Enquiry
Graham & Sibbald- Edinburgh