Retail/Shop To Let, Ipswich
4 photos
£2,292 / month
£27,500 pa
335-337 Woodbridge Road, Ipswich, IP4 4AX
Type
Retail/Shop
Status
Available
Size
3,676 sq ft
Property Details
Location:
Ipswich Is The County Town Of Suffolk With A Resident Population Of Approximately 130,000 And A Catchment Of About 320,000.
Woodbridge Road (a1156) Is A Key Arterial Route Providing Excellent Connectivity To The East Side Of Ipswich, Including Rushmere St Andrew, Kesgrave, And Martlesham, And Linking To The A12 For Access To Woodbridge.
The Property Is Situated On The Northern Side Of Woodbridge Road, On The Junction With Brunswick Road, Approximately 1 Mile East Of Ipswich Town Centre.
Description:
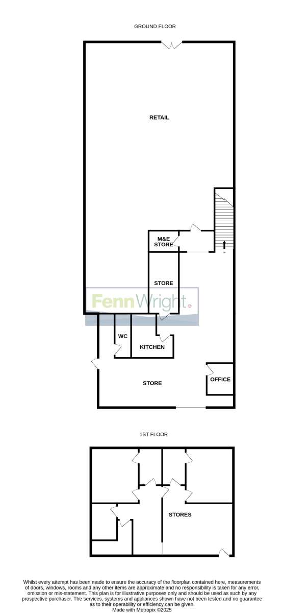
The Property Comprises A Prominent Two-storey Building With A Pitch Tiled Roof, Together With A Single-storey Flat Roof Extension To The Rear. The Ground Floor Is Arranged To Provide A Retail Area To The Front, With A Rear Store Incorporating Kitchen And Wc Facilities. The First Floor Offers Ancillary Storage Rooms, Which May Be Suitable For Conversion To Office Accommodation, Subject To Planning.
The Main Retail Area Benefits From A Fully Glazed Frontage And Is Fitted With Suspended Ceilings Incorporating Air-conditioning, Surface-mounted Led Lighting, And Vinyl Floor Coverings.
Externally, The Property Has A Service/loading Bay At The Rear, While A Block Paved Forecourt Provides Customer Access.
Accommodation:
[approximate Net Internal Floor Areas]
Ground Floor
Retail 1,815 Sq Ft [ 168.61 Sq M]
Rear Store (inc. Tea-point) 874 Sq Ft [ 81.24 Sq M]
Storeroom 88 Sq Ft [ 8.15 Sq M]
M&e Store 36 Sq Ft [ 3.30 Sq M]
First Floor Ancillary Stores 863 Sq Ft [ 80.18 Sq M]
Total Net Internal Floor Area 3,676 Sq Ft [ 341.48 Sq M]
Services:
We Understand That The Property Is Connected To Mains Electricity, Water And Drainage.
We Have Not Tested Any Of The Services And All Interested Parties Should Rely Upon Their Own Enquiries With The Relevant Utility Companies In Connection With The Availability And Capacity Of All Those Serving The Property Including It And Telecommunications.
Business Rates:
The Premises Are Assessed As Follows:-
Rateable Value: £15,500 | Rates Payable (2025/2026): £7,734.50 Per Annum
The Rates Payable Are Based On The Current Ubr Of £0.499. All Interested Parties Should Speak To The Local Rating Authority To Verify Their Rates Liability.
Local Authority:
Ipswich Borough Council
Grafton House
15-17 Russell Road
Ipswich
Suffolk, Ip1 2de
Telephone 01473 432000
Energy Performance Certificate:
B (47) Rating - Ref: 0005-3710-2952-2801-0925
Terms:
The Premises Are Available Upon A New Full Repairing And Insuring Business Lease Upon Terms To Be Agreed And At An Initial Rent Of £27,500 Per Annum Exclusive.
It Is Understood Vat Will Be Payable On The Rent.
Legal Costs:
Each Party Is To Be Responsible For Its Own Legal Costs Incurred During The Course Of The Transaction.
Ipswich Is The County Town Of Suffolk With A Resident Population Of Approximately 130,000 And A Catchment Of About 320,000.
Woodbridge Road (a1156) Is A Key Arterial Route Providing Excellent Connectivity To The East Side Of Ipswich, Including Rushmere St Andrew, Kesgrave, And Martlesham, And Linking To The A12 For Access To Woodbridge.
The Property Is Situated On The Northern Side Of Woodbridge Road, On The Junction With Brunswick Road, Approximately 1 Mile East Of Ipswich Town Centre.
Description:
The Property Comprises A Prominent Two-storey Building With A Pitch Tiled Roof, Together With A Single-storey Flat Roof Extension To The Rear. The Ground Floor Is Arranged To Provide A Retail Area To The Front, With A Rear Store Incorporating Kitchen And Wc Facilities. The First Floor Offers Ancillary Storage Rooms, Which May Be Suitable For Conversion To Office Accommodation, Subject To Planning.
The Main Retail Area Benefits From A Fully Glazed Frontage And Is Fitted With Suspended Ceilings Incorporating Air-conditioning, Surface-mounted Led Lighting, And Vinyl Floor Coverings.
Externally, The Property Has A Service/loading Bay At The Rear, While A Block Paved Forecourt Provides Customer Access.
Accommodation:
[approximate Net Internal Floor Areas]
Ground Floor
Retail 1,815 Sq Ft [ 168.61 Sq M]
Rear Store (inc. Tea-point) 874 Sq Ft [ 81.24 Sq M]
Storeroom 88 Sq Ft [ 8.15 Sq M]
M&e Store 36 Sq Ft [ 3.30 Sq M]
First Floor Ancillary Stores 863 Sq Ft [ 80.18 Sq M]
Total Net Internal Floor Area 3,676 Sq Ft [ 341.48 Sq M]
Services:
We Understand That The Property Is Connected To Mains Electricity, Water And Drainage.
We Have Not Tested Any Of The Services And All Interested Parties Should Rely Upon Their Own Enquiries With The Relevant Utility Companies In Connection With The Availability And Capacity Of All Those Serving The Property Including It And Telecommunications.
Business Rates:
The Premises Are Assessed As Follows:-
Rateable Value: £15,500 | Rates Payable (2025/2026): £7,734.50 Per Annum
The Rates Payable Are Based On The Current Ubr Of £0.499. All Interested Parties Should Speak To The Local Rating Authority To Verify Their Rates Liability.
Local Authority:
Ipswich Borough Council
Grafton House
15-17 Russell Road
Ipswich
Suffolk, Ip1 2de
Telephone 01473 432000
Energy Performance Certificate:
B (47) Rating - Ref: 0005-3710-2952-2801-0925
Terms:
The Premises Are Available Upon A New Full Repairing And Insuring Business Lease Upon Terms To Be Agreed And At An Initial Rent Of £27,500 Per Annum Exclusive.
It Is Understood Vat Will Be Payable On The Rent.
Legal Costs:
Each Party Is To Be Responsible For Its Own Legal Costs Incurred During The Course Of The Transaction.
Location
Fenn Wright LLP
View all properties
Make an Enquiry
Fenn Wright LLP