Office To Let, Wantage

Office in Wantage
Office in Wantage
Office in Wantage
Office in Wantage
£3,750 / month
£45,000 pa

Brooklands, 48 Newbury Street, Wantage, OX12 8DF

Type Office
Status Check Availability
Size 5,640 sq ft

Key Features

  • Detached, multi-rooms building set over three floors
  • Use Class E Commercial business & Service
  • Wantage
  • Parking

Property Details

General description

Believed to date from the Victorian era and set in the town‘s Conservation Area (but not Listed) a large, detached, 13 rooms commercial building arranged over two floors to the front and three to the rear with a usable basement and featuring off-road parking. Set back from Newbury Street just south of the town centre shopping area, the building sits in approximately 0.37 of an acre. &nbsp&nbsp

Permitted use

The historic use of the building is as offices, which now fall under Use Class E Commercial, business and service*. But also has the potential to accommodate other uses – subject to planning consent – such as a Hotel/guest house (Use Class C1), a Care/nursing home (C2) or a school (F1(a)). *Some uses permitted by Use Class E may require the Landlord‘s consent, please check with us before viewing).

Location

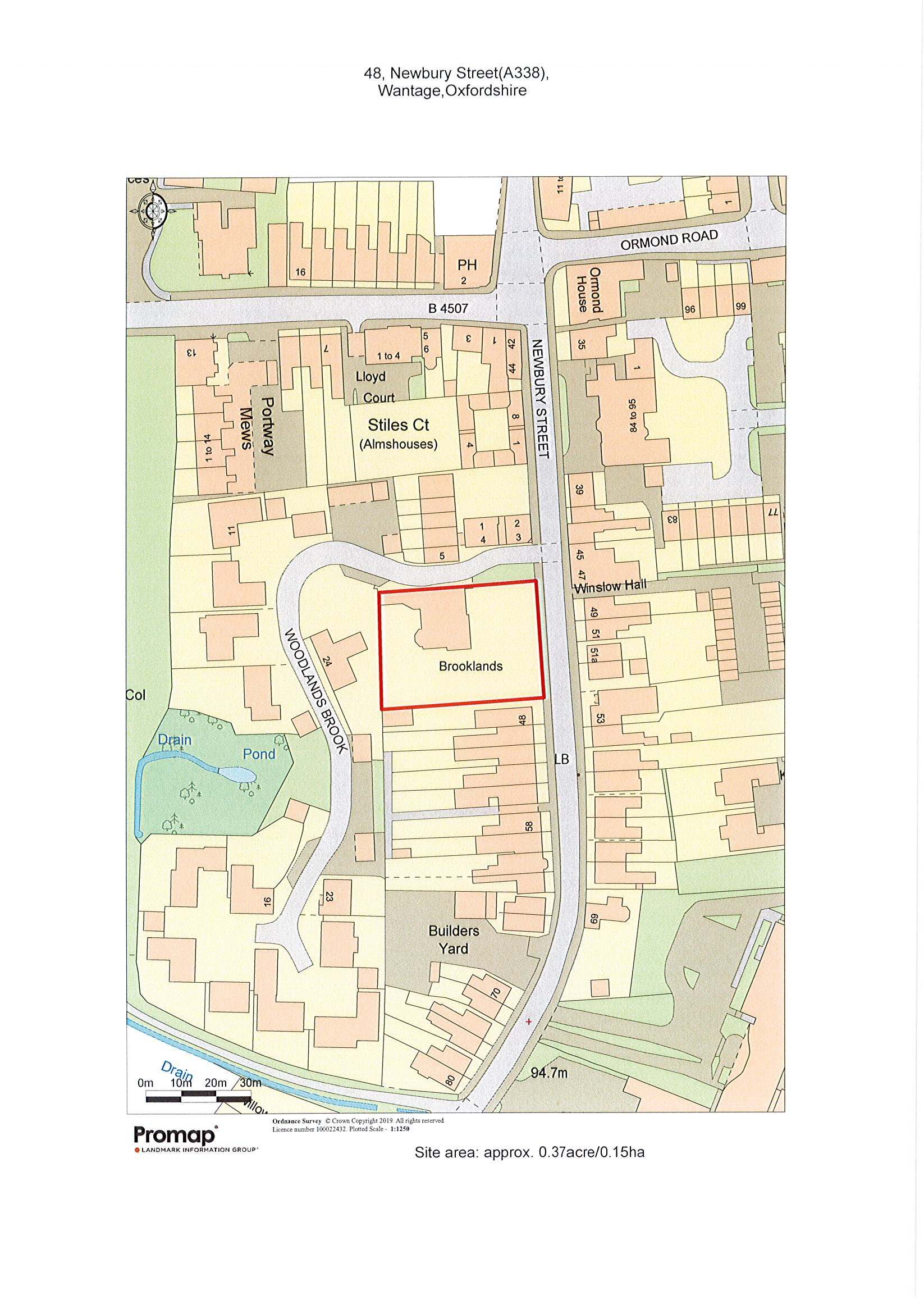
The historic market town of Wantage, along with nearby Grove, is located in affluent southern Oxfordshire approximately 15 miles southwest of Oxford at the junction of the A338 with the A417 and approx. 6 miles west of the A34 &ldquoMilton interchange&rdquo near Didcot. Both are growing rapidly in population terms, set to continue for several years yet.

The building is on the west side of Newbury Street (A338) about 60 yards south of the traffic light crossroads of Portway (B4507 west) and Ormond Road (east) with predominantly residential neighbours. Post code OX12 8DF

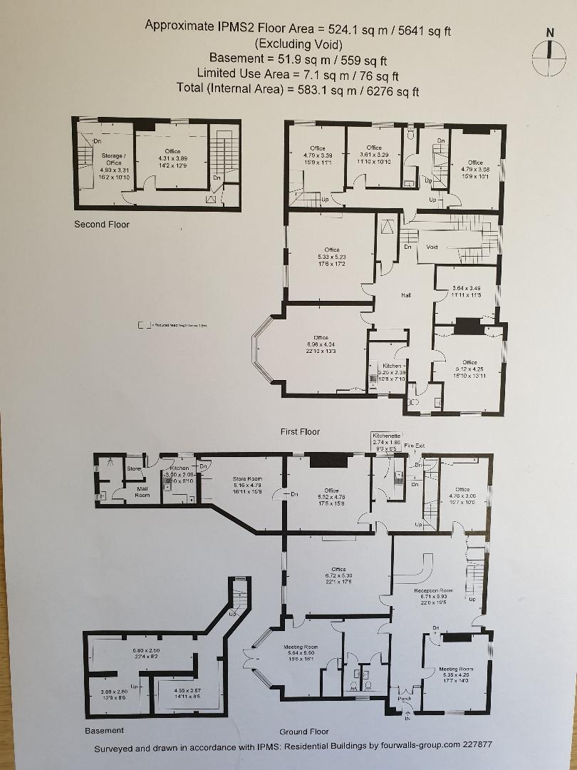
The accommodation (See floor plan for dimensions)

On the ground floor – An entrance vestibule leads to a large hall/reception area with 5 principal offices off plus 2 WCs, 2 kitchens/tea stations and a store room. Front and rear staircases then lead up to the ...

First floor – With a total of 7 offices plus a further kitchen and 2 WCs. 2 x sets of stairs off the rear of the landing lead up to the&hellip

Second floor – With 1 principal office and a store room.

Basement – Damp proofed and accessed via concealed steps down from the rear hall, of average head height and comprising 3 chambers.

Outside – There are walled, enclosed, gardens to 3 sides which feature a large yew tree hedge along the Newbury Street boundary and 3 x TPO‘d coniferous trees along the south boundary. The car park comfortably provides space for several vehicles via a gated driveway.

Price guide and terms

Rental only, under a full repairing and insuring lease of negotiable term for which offers in the region of £3,750pcm/£45,000.00pa exclusive of any other tenant‘s outgoings are invited. An initial period of reduced rent can be discussed, depending on the length of term before a tenant‘s break option can be exercised. &nbsp&nbsp&nbsp

A commercial tenancy application and references are required, at a cost of £120.00 incl. VAT.&nbsp&nbsp&nbsp&nbsp&nbsp

VAT

We understand that VAT is not payable in addition.

Business Rates

Rateable Value - £34,500 (April 2023). The Small Business Multiplier for 2025/26 is x 0.499 ( £17,215.50 payable) but please contact VWHDC directly for confirmation and the availability of any additional business rates relief.

Services

Mains water, gas, electricity and drainage are connected. Heating is partially from a gas fired boiler and partially by electric panel heaters. Telephone/broadband services by tenant‘s own subscription.

EPC rating

E/109. Full details are available on request.

Availability

Immediately on completion of formalities.&nbsp&nbsp&nbsp&nbsp

Local planning and rating authority

Vale of White Horse District Council, Abbey House, Abbey Close, Abingdon OX14 3SE

Tel 01235 422422&nbsp&nbsp&nbsp

Viewing

By prior appointment with Green & Co Commercial and Development Agency, during usual business hours Monday to Friday. only Tel. 01235 763561 (ref. OM) or email oliver.martin@greenand.co.uk
Green & Co Ltd
Green & Co Ltd View all properties
Office To Let, Wantage
£3,750 / month
£45,000 pa

Brooklands, 48 Newbury Street, Wantage, OX12 8DF

Office · Check Availability · 5,640 sq ft

Property ID: 140792

Send Enquiry
Green & Co Ltd
Green & Co Ltd View all properties

Make an Enquiry

Boxpod will only use your details to send an enquiry to the advertiser and prompt a response. By clicking Send Enquiry, you agree to Boxpod's Privacy Policy.

Make an Enquiry

Green & Co Ltd
Green & Co Ltd

Boxpod will only use your details to send an enquiry to the advertiser and prompt a response. By clicking Send Enquiry, you agree to Boxpod's Privacy Policy.

Call