Retail/Shop To Let, Dundee
3 photos
POA
Gym/Leisure Proposal,80 Nethergate, Dundee, DD1 4ER
Type
Retail/Shop
Status
Available
Size
25,251 sq ft
Property Details
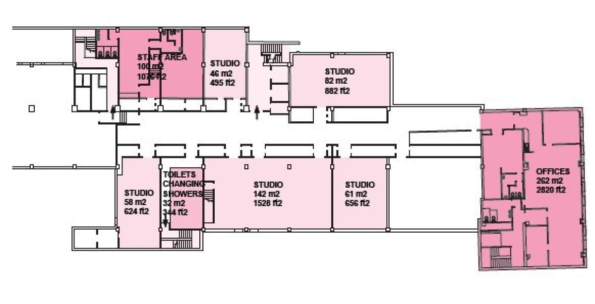
Indicative Proposals Have Been Drawn Up For The Current Mall Office Space To Be Re-purposed Into A Leisure Or Gym Use.
This Would Be Subject To Planning But Indicative Floorplans And Sizes Are Provided.
This Would Be Subject To Planning But Indicative Floorplans And Sizes Are Provided.
Location
LSH-Edinburgh
View all properties
Make an Enquiry
LSH-Edinburgh