Back to results

Industrial Unit For Sale, Lincoln

Industrial Unit in Lincoln
Industrial Unit in Lincoln
Industrial Unit in Lincoln
Industrial Unit in Lincoln
£375,000 Freehold

Workshop And Site,4-6 George Street, Lincoln, LN5 8LG

Type Industrial Unit
Status Under Offer
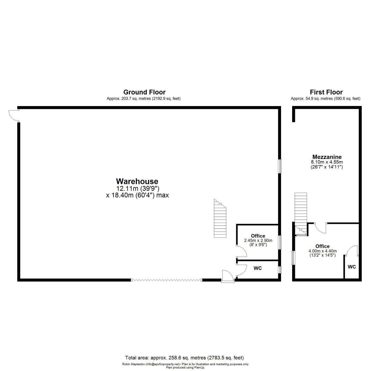
Size 2,364 sq ft

Key Features

  • Detached Industrial Unit on site of approx. 0.35 acres
  • GIA approx. 2,364 sqft (220 sqm)
  • 3-phase electricity supply available
  • Site being largely rectangular in shape and fully enclosed.
  • Undoubted redevelopment potential for new-build Industrial/Storage Units

Property Details

The subject property briefly comprises a detached Industrial Unit on a broadly rectangular site extending to approximately 0.35 acres which is fenced and gated located in an established Commercial location off Great Northern Terrace.

We believe that the property was built during the late 1970's/early 1980's and is of steel portal frame construction with brick elevations at the base with the remainder of the walls and roof covering being over-clad in profiled and insulated metal. The eaves height of the property is approximately 4.50 meters (14 feet 9 inches) with a 3-phase electricity supply being connected to the property along with dedicated WC facilities.

Detached Industrial Unit On Site Of Approx. 0.35 Acres

Gia Approx. 2,364 Sqft (220 Sqm)

3-phase Electricity Supply Available

Site Being Largely Rectangular In Shape And Fully Enclosed.

Industrial Unit With Redevelopment Potential

Industrial Unit With Redevelopment Potential
George Street, Lincoln, Ln5 8lg
£375,000 Freehold

Detailed Description

The Subject Property Briefly Comprises A Detached Industrial Unit On A Broadly Rectangular Site Extending To Approximately 0.35 Acres Which Is Fenced And Gated Located In An Established Commercial Location Off Great Northern Terrace.

We Believe That The Property Was Built During The Late 1970's/early 1980's And Is Of Steel Portal Frame Construction With Brick Elevations At The Base With The Remainder Of The Walls And Roof Covering Being Over-clad In Profiled And Insulated Metal. The Eaves Height Of The Property Is Approximately 4.50 Meters (14 Feet 9 Inches) With A 3-phase Electricity Supply Being Connected To The Property Along With Dedicated Wc Facilities.

Location

George Street Is Located Off Great Northern Terrace And Is An Established Commercial Location On The Outskirts Of The City Centre Accessible From Tentercroft Street As Well As Via Canwick Road/pelham Bridge.

Lincoln Is A Cathedral City With An Urban Population Of Approximately 130,000 People As Of The 2021 Census. The City Is Located Approximately 33 Miles North East Of The City Of Nottingham, 41 Miles South East Of The City Of Sheffield And 48 Miles North Of The City Of Peterborough. The A1 Is Approximately 17 Miles South West At Newark.

Lincoln Benefits From A Main Line Rail Connection To London Kings Cross With A Fastest Journey Time Of Approximately 2 Hours.

Undoubted Redevelopment Potential For New-build Industrial/storage Units
Brown & Co
Brown & Co View all properties
Industrial Unit For Sale, Lincoln
£375,000 Freehold

Workshop And Site,4-6 George Street, Lincoln, LN5 8LG

Industrial Unit · Under Offer · 2,364 sq ft

Property ID: 141676

Send Enquiry
Brown & Co
Brown & Co View all properties

Make an Enquiry

Boxpod will only use your details to send an enquiry to the advertiser and prompt a response. By clicking Send Enquiry, you agree to Boxpod's Privacy Policy.

Make an Enquiry

Brown & Co
Brown & Co

Boxpod will only use your details to send an enquiry to the advertiser and prompt a response. By clicking Send Enquiry, you agree to Boxpod's Privacy Policy.

Call