Office For Sale, Sleaford

Office in Sleaford
Office in Sleaford
Office in Sleaford
Office in Sleaford
£650,000 Freehold

Kesteven Business Centre,Kesteven Street, Sleaford, NG34 7DT

Type Office
Status Available
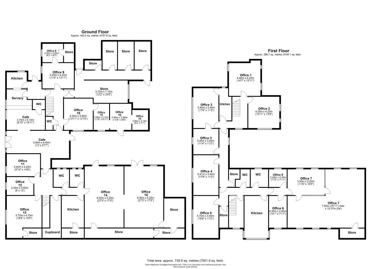
Size 5,402 sq ft

Key Features

  • Town Centre, Multi-let Serviced Office / Cafe Investment
  • - Current rental income is £66,120 p.a.x. ERV when fully let £95,520 p.a.x
  • 15 Office Suites and Ground Floor Cafe
  • Shared kitchen & WC facilities.

Property Details

The property comprises an attached, two storey Office/Café Premises of brick construction with a pitched roof.

The property is arranged as 15 serviced Office Suites and a Ground Floor Café. Each floor benefits from shared Kitchen and WC facilities. The current gross rental income is £66,120 per annum and where the estimated gross rental income when fully let is £95,520 per annum.

The rent for each Office Suite is inclusive of utility bills and we have been informed that total utility costs are approximately £12,000 per annum. The majority of tenants also pay a contribution towards internet.

Town Centre, Multi-let Serviced Office / Cafe Investment

- Current Rental Income Is £66,120 P.a.x. Erv When Fully Let £95,520 P.a.x

15 Office Suites And Ground Floor Cafe

Shared Kitchen & Wc Facilities.

Investment Opportunity
Kesteven Business Centre, Kesteven Street, Sleaford, Ng34 7dt
Guide Price - £650,000

Investment Opportunity
Kesteven Business Centre, Kesteven Street, Sleaford, Ng34 7dt
Guide Price - £650,000

Detailed Description

The Property Comprises An Attached, Two Storey Office/café Premises Of Brick Construction With A Pitched Roof.

The Property Is Arranged As 15 Serviced Office Suites And A Ground Floor Café. Each Floor Benefits From Shared Kitchen And Wc Facilities. The Current Gross Rental Income Is £66,120 Per Annum And Where The Estimated Gross Rental Income When Fully Let Is £95,520 Per Annum.

The Rent For Each Office Suite Is Inclusive Of Utility Bills And We Have Been Informed That Total Utility Costs Are Approximately £12,000 Per Annum. The Majority Of Tenants Also Pay A Contribution Towards Internet.

Location

Kesteven Business Centre Occupies A Prominent Town Centre Position Within The Bustling Market Town Of Sleaford Which, As Of The 2021 Census, Had A Population Of Approximately 18,000.

Sleaford Occupies A Strategic Position In The Centre Of The County Of Lincolnshire And Is Situated At The Junction Of The A15 & A17 Trunk Roads From Which Easy Access Can Be Obtained To The Larger Conurbations Of Boston & Newark Together With The City Of Lincoln To The North, All Of Which Can Be Reached Within Approximately 20 Minutes Drive Time.

The Property Is Located Just 0.5 Miles To North Of Sleaford Railway Station, 0.1 Miles To The East Of The Market Place And 0.2 Miles From Southgate.
Brown & Co
Brown & Co View all properties
Office For Sale, Sleaford
£650,000 Freehold

Kesteven Business Centre,Kesteven Street, Sleaford, NG34 7DT

Office · Available · 5,402 sq ft

Property ID: 142378

Send Enquiry
Brown & Co
Brown & Co View all properties

Make an Enquiry

Boxpod will only use your details to send an enquiry to the advertiser and prompt a response. By clicking Send Enquiry, you agree to Boxpod's Privacy Policy.

Make an Enquiry

Brown & Co
Brown & Co

Boxpod will only use your details to send an enquiry to the advertiser and prompt a response. By clicking Send Enquiry, you agree to Boxpod's Privacy Policy.

Call