Back to results

Industrial Unit To Let Or For Sale, Exeter

Industrial Unit in Exeter
Industrial Unit in Exeter
Industrial Unit in Exeter
Industrial Unit in Exeter
£400,000 Freehold

Manaton Close, Exeter, EX2 8PF

Type Industrial Unit
Status Available
Size 2,403 sq ft

Key Features

  • End of terrace hybrid unit with parking
  • Gross Internal Area (GIA): 4,806 sq.ft (446.55 sq.m)
  • Suitable for a variety of uses, subject to consents
  • Available with vacant possession

Property Details

Located on Marlborough Court, a small development of 10 similar units within the well-established Matford Business Park. Exeter is the county town and the major regional shopping centre for the county of Devon with
a population of over 130,000.

End Of Terrace Hybrid Unit With Parking

End Of Terrace Hybrid Unit With Parking

Gross Internal Area (gia): 4,806 Sq.ft (446.55 Sq.m)

Suitable For A Variety Of Uses, Subject To Consents

Available With Vacant Possession

Located On Marlborough Court, A Small Development Of 10 Similar Units Within The Well-established Matford Business Park. Exeter Is The County Town And The Major Regional Shopping Centre For The County Of Devon With
A Population Of Over 130,000.

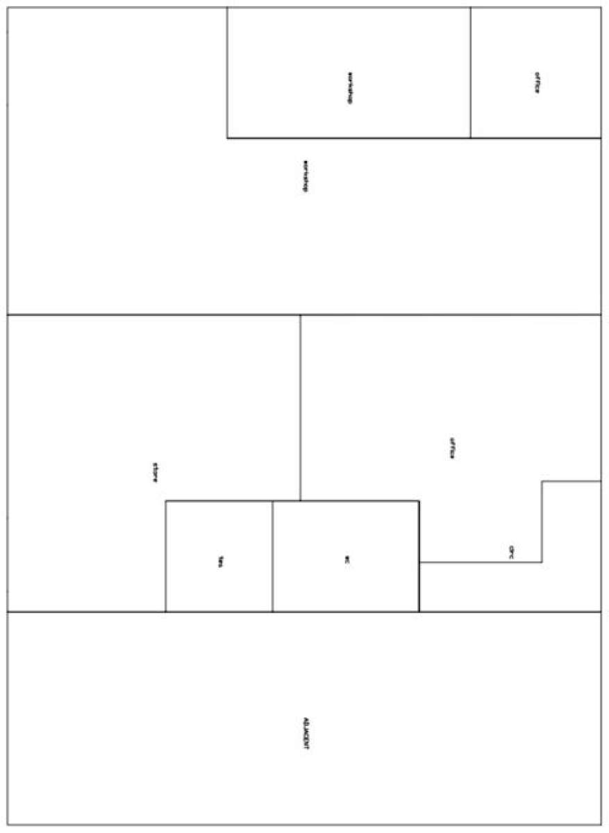
The Property Comprises An End Terraced Late 1980s Hybrid Commercial Double Unit Which Provides Trade Counter And Storage On The Ground Floor And Amalgamated Office/staff Accommodation On The First Floor.

The Front Elevation Incorporates Two Storey Powder Coated
Aluminium Double Glazed Windows And Pedestrian Entrance With External Metal Roller Shutters.

The Property Benefits From 12 Allocated Car Spaces.

Vat Will Be Applied At The Standard Rate Where Applicable.

Both Parties To Bear Their Own Legal Costs In The Transaction.

An Epc Is Available For This Property. Please Contact The Agent For Further Details.
Stratton Creber Commercial - Exeter
Stratton Creber Commercial - Exeter View all properties
Industrial Unit To Let Or For Sale, Exeter
£400,000 Freehold

Manaton Close, Exeter, EX2 8PF

Industrial Unit · Available · 2,403 sq ft

Property ID: 144359

Send Enquiry
Stratton Creber Commercial - Exeter
Stratton Creber Commercial - Exeter View all properties

Make an Enquiry

Boxpod will only use your details to send an enquiry to the advertiser and prompt a response. By clicking Send Enquiry, you agree to Boxpod's Privacy Policy.

Make an Enquiry

Stratton Creber Commercial - Exeter
Stratton Creber Commercial - Exeter

Boxpod will only use your details to send an enquiry to the advertiser and prompt a response. By clicking Send Enquiry, you agree to Boxpod's Privacy Policy.

Call