Land For Sale, Inverness

Land in Inverness
Land in Inverness
Land in Inverness
POA

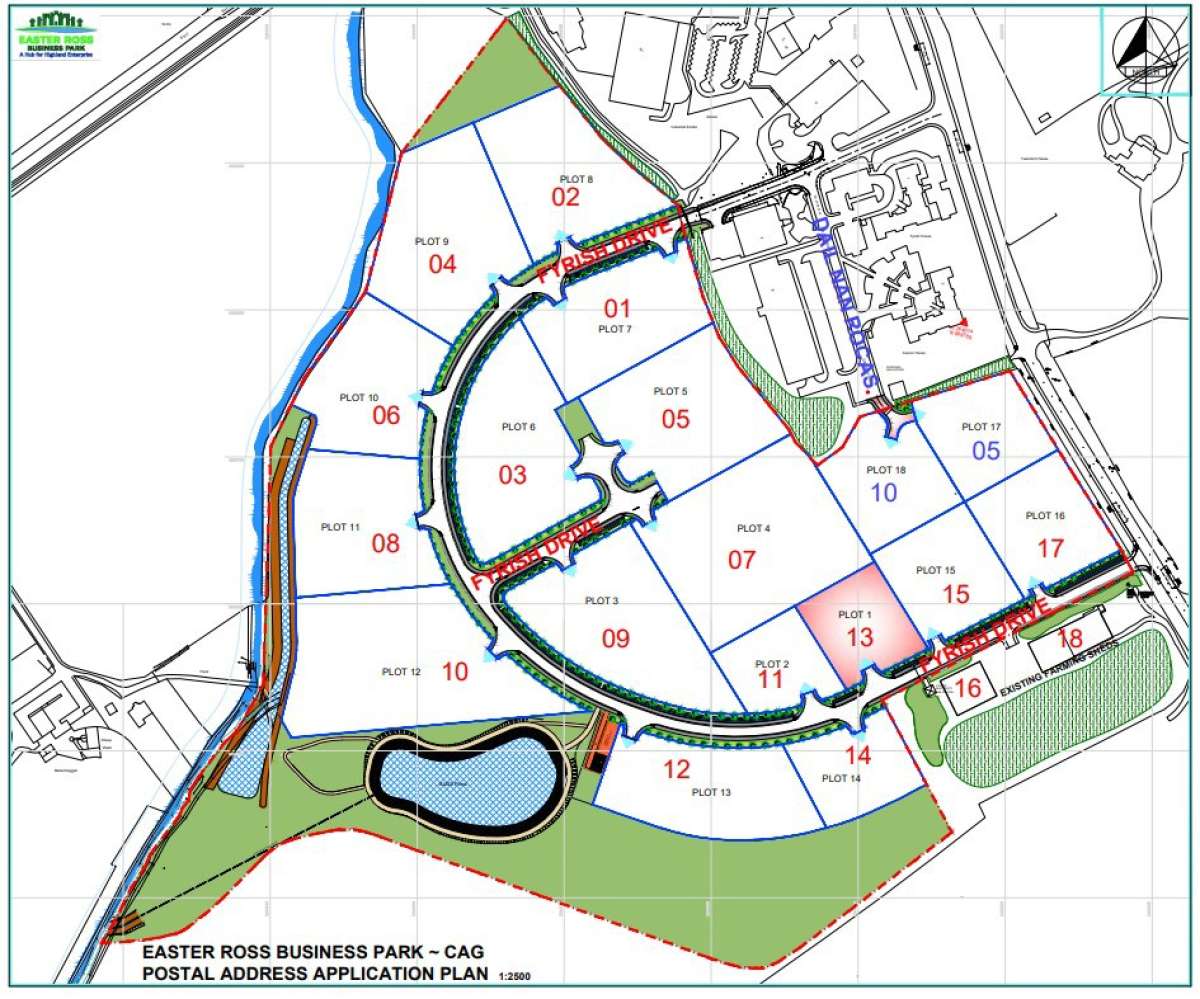
Land Easter Ross Business Park, Inverness, IV17 0AH

Type Land
Status Available
Size 0 sq ft

Key Features

  • Over 32 acres available
  • Ideal for Industrial, office or dedicated yard space
  • Located within the Cromarty Firth Green Freeport

Property Details

The Easter Ross Business Park is located in the Inverness and Cromarty Firth Green Freeport.

Over 32 Acres Of Flexible Development Space, Ideal For Industrial Use, Office Space, Or Dedicated Yard Space - Or Even A Combination Of All Three. Zoned Areas Ready For Development:- Flexible Unit Sizes From Small To Extra-large- Custom Plots, Including Two Acres Or More- Design And Fit-out To Suit Your Business Needs. Join A Thriving Business Community Located In The Inverness And Cromarty Firth Green Freeport.

The Easter Ross Business Park Is Located In The Inverness And Cromarty Firth Green Freeport.
Graham & Sibbald-Inverness
Graham & Sibbald-Inverness View all properties
Land For Sale, Inverness
POA

Land Easter Ross Business Park, Inverness, IV17 0AH

Land · Available · 0 sq ft

Property ID: 144381

Send Enquiry
Graham & Sibbald-Inverness
Graham & Sibbald-Inverness View all properties

Make an Enquiry

Boxpod will only use your details to send an enquiry to the advertiser and prompt a response. By clicking Send Enquiry, you agree to Boxpod's Privacy Policy.

Make an Enquiry

Graham & Sibbald-Inverness
Graham & Sibbald-Inverness

Boxpod will only use your details to send an enquiry to the advertiser and prompt a response. By clicking Send Enquiry, you agree to Boxpod's Privacy Policy.

Call