Land To Let, Tavistock
3 photos
POA
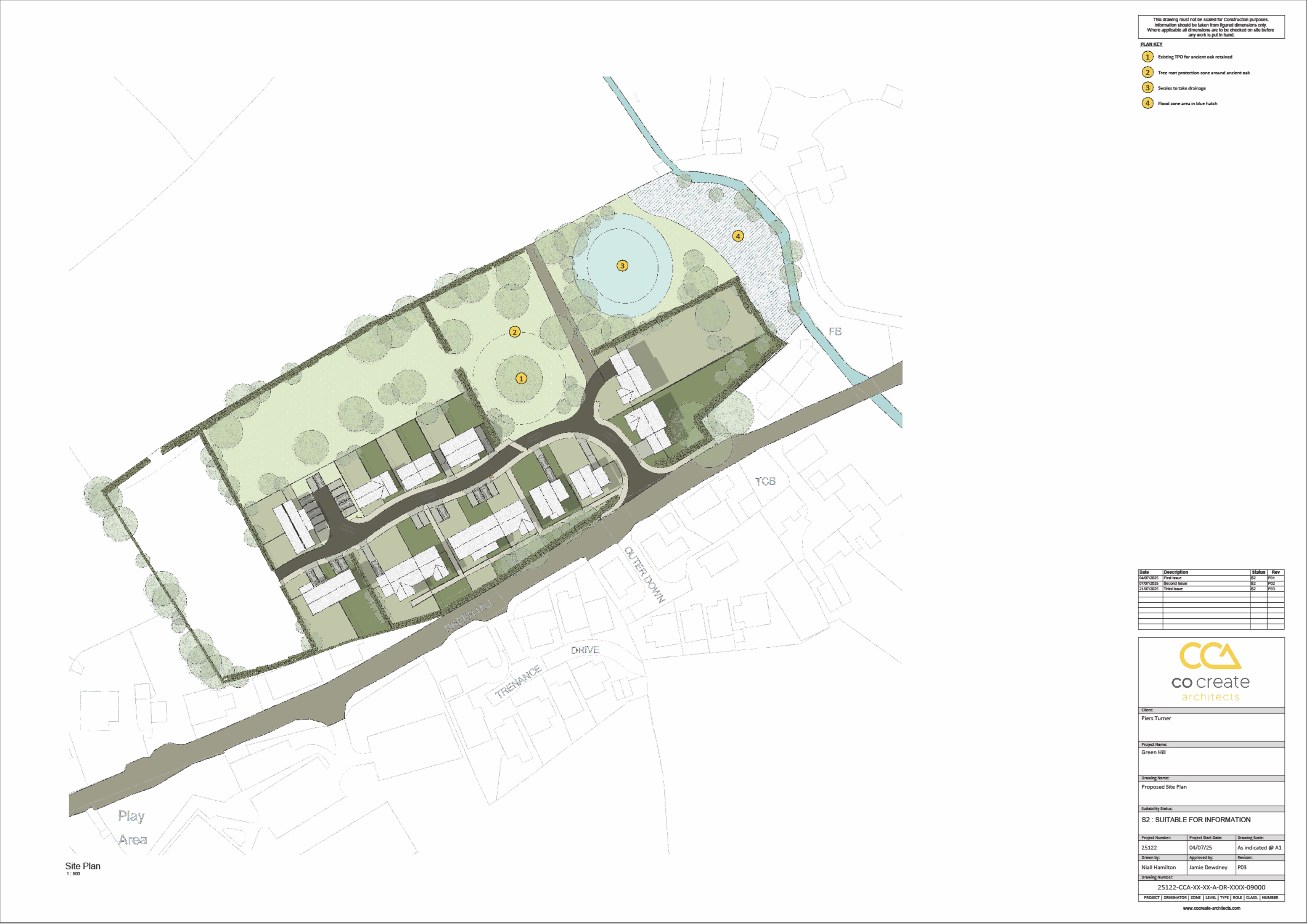
Land at Green Hill, Tavistock, PL19 8QP
Type
Land
Status
Check Availability
Size
3.80 Acres
Key Features
- Planning permission for 15 dwellings plus 4 self build plots
- Edge of village location
- Easy walking distance of the popular Blacksmiths Arms
- Gentle sloping site
- Mix of open market and affordable dwellings
Property Details
This freehold parcel of approximately 1.539 hectares (c. 3.803 acres) of sloping greenfield pasture lies on the northern edge of Lamerton village. The site has planning permission for a mixed development of 15 open market and affordable dwellings, together with four self build plots. The 15 plots are being offered for sale, following which the four self build plots will be sold.
The site benefits from an outline planning consent (Ref 0107/22/OPA), permitting up to 19 residential dwellings, with all matters reserved except for access (which has been granted in principle). The property is offered with vacant possession and full freehold title.
The site benefits from an outline planning consent (Ref 0107/22/OPA), permitting up to 19 residential dwellings, with all matters reserved except for access (which has been granted in principle). The property is offered with vacant possession and full freehold title.
Location
Ward Chowen Commercial
View all properties
Make an Enquiry
Ward Chowen Commercial