Office For Sale, Fareham

Office in Fareham
Office in Fareham
Office in Fareham
Office in Fareham
POA

1 - 4 North Park,Mayles Lane, Fareham, PO17 5LJ

Type Office
Status Available
Size 3,384 sq ft

Key Features

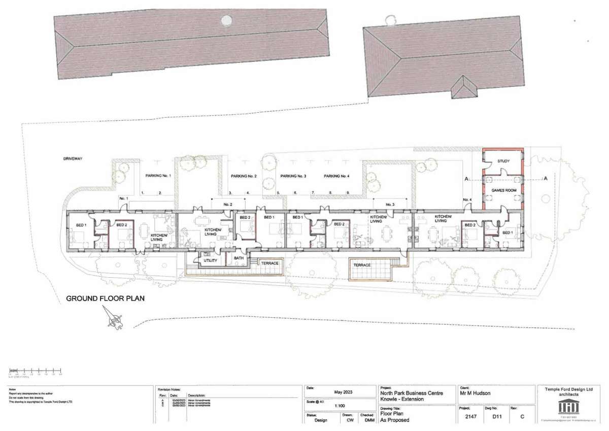
  • Guide price £600,000
  • Oven ready development to four dwellings with parking
  • Attractive setting with good transport links
  • Conversion Planning Ref - 23/01185/PNRCOU
  • Extension Planning Ref - 23/01186/FUL
  • Full plans available on request

Property Details

North Park Began Life As Part Of The Grouped Structures Forming Knowle Farm, Dating Back To 17th Century.

The Property Features Barn-style Single Storey Office Buildings, With 16 Parking Spaces And The Benefit Of Planning Permission For An Extension And Conversion To Four Residential Units. Previously Used As Offices By The Current Owners, The Building Is In Good Condition, Ready For The New Owner To Begin The Conversion Process.
LSH- Fareham
LSH- Fareham View all properties
Office For Sale, Fareham
POA

1 - 4 North Park,Mayles Lane, Fareham, PO17 5LJ

Office · Available · 3,384 sq ft

Property ID: 146653

Send Enquiry
LSH- Fareham
LSH- Fareham View all properties

Make an Enquiry

Boxpod will only use your details to send an enquiry to the advertiser and prompt a response. By clicking Send Enquiry, you agree to Boxpod's Privacy Policy.

Make an Enquiry

LSH- Fareham
LSH- Fareham

Boxpod will only use your details to send an enquiry to the advertiser and prompt a response. By clicking Send Enquiry, you agree to Boxpod's Privacy Policy.

Call