Back to results

Retail/Shop To Let, Chellaston

Retail/Shop in Chellaston
Retail/Shop in Chellaston
Retail/Shop in Chellaston
Retail/Shop in Chellaston
£2,667 / month
£32,000 pa

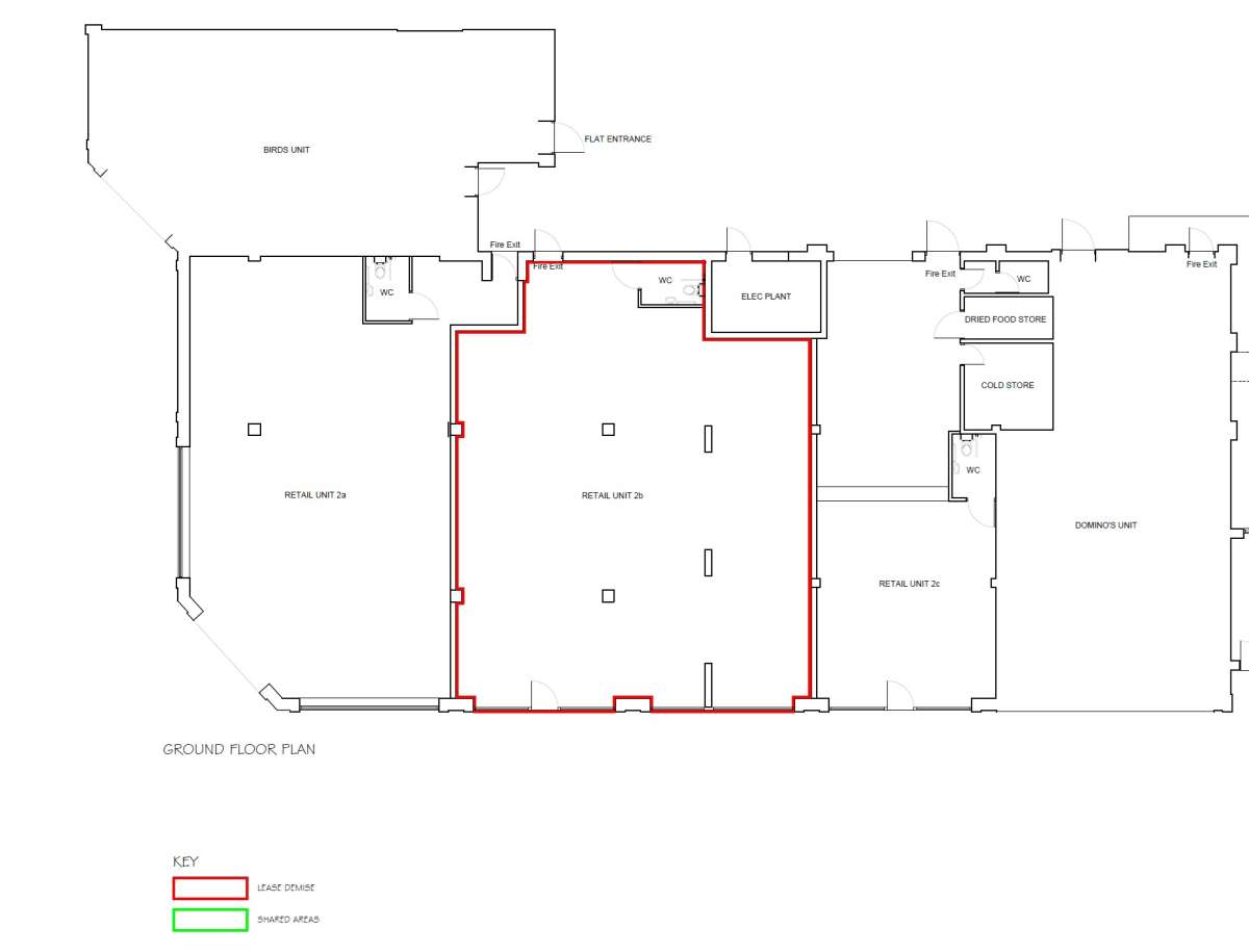
2b Swarkestone Road, Chellaston, DE73 6UF

Type Retail/Shop
Status Available
Size 1,544 sq ft

Key Features

  • Part of former Co-Op food store
  • Works underway to sub divide into 3 new units
  • Lat remaining unit
  • Well located in neighbourhood centre
  • Neighbouring Birds and Domino's Pizza
  • Suitable for a variety of high street uses

Property Details

Description

Last Remining Shop. 3 New Units Being Created From Former Co-op Convenience Store. Prime Position In Neighbourhood Centre Next To Birds Bakery And Domino's. Being Offered As A Shell Ready For Occupier Fit Out.

Some Staff Parking To The Rear With Loading. Additional Onsite Pay And Display Or Free Street Parking

Viewing

Please Contact Us Or Visit Www.omeeto.co.uk For Full Details. Physical Viewings With Proceedable Parties Can Be Arranged On Request By Contacting Our Commercial Property Agents. Omeeto Do Not Take Any Responsibility For Any Loss Or Injury Caused Whilst Carrying Out A Site Visit.

Service Charge

Is Payable For The Running, Maintenance And Up Keep Of The Building Structure, Common, Shared And External Areas.

Vat

All Figures Are Quoted Exclusive Of Vat, We Are Advised The Property Is Registered For Vat Which Is Applicable At The Prevailing Rate.

Epc

The Existing Building Is Currently Assessed As B(47). A New Epc Shall Be Commissioned For Completion On The Proposed Units.
Omeeto Ltd
Omeeto Ltd View all properties
Retail/Shop To Let, Chellaston
£2,667 / month
£32,000 pa

2b Swarkestone Road, Chellaston, DE73 6UF

Retail/Shop · Available · 1,544 sq ft

Property ID: 147148

Send Enquiry
Omeeto Ltd
Omeeto Ltd View all properties

Make an Enquiry

Boxpod will only use your details to send an enquiry to the advertiser and prompt a response. By clicking Send Enquiry, you agree to Boxpod's Privacy Policy.

Make an Enquiry

Omeeto Ltd
Omeeto Ltd

Boxpod will only use your details to send an enquiry to the advertiser and prompt a response. By clicking Send Enquiry, you agree to Boxpod's Privacy Policy.

Call