Back to results

Industrial Unit For Sale, Ivybridge

Industrial Unit in Ivybridge
Industrial Unit in Ivybridge
Industrial Unit in Ivybridge
Industrial Unit in Ivybridge
£235,000 Freehold

Unit 2,5 Cadleigh Close, Ivybridge, PL21 9GB

Type Industrial Unit
Status Under Offer
Size 1,808 sq ft

Key Features

  • Industrial unit
  • Concertina loading door
  • First floor office
  • Popular location at Lee Mill
  • Freehold for sale

Property Details

The property is located on the popular Lee Mill Industrial Estate which has easy access to the A38. Cadleigh Close is accessed from East Way which is one of the main trunk roads on the estate.

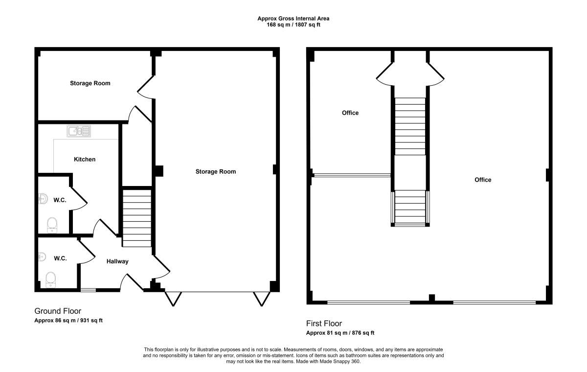
The Property Comprises Of An Industrial Unit With A Main Warehouse Area That Has Concertina Shutter Door Access. There Is An Additional Storage Room To The Rear Along With Toilet And Kitchen Facilities. There Is A Full First Floor To The Property Which Provides Good Quality Office Space Which Is Mainly Open Plan, But With One Partitioned Office Area. The Office Area Benefits From Air Conditioning And Led Lighting.

There Are 3 Allocated Parking Spaces Opposite The Unit.

Location

The Property Is Located On The Popular Lee Mill Industrial Estate Which Has Easy Access To The A38. Cadleigh Close Is Accessed From East Way Which Is One Of The Main Trunk Roads On The Estate.

Accommodation

All Areas Are Approximate And Measured In Accordance With The Rics Property Measurement (2nd Edition) On A Gross Internal Basis.

Ground Floor - 86.54 Sq M (931 Sq Ft)
First Floor - 81.39 Sq M (876 Sq Ft)
Total - 167.9 Sq M (1,808 Sq Ft)

Rent / Price

£235,000

Service Charge

A Service Charge Is Levied For The Upkeep And Maintenance Of The Road. Please Enquire For Further Information.

Business Rates

From The Valuation Office Agency Website (www.voa.gov.uk) We Understand That The Current Rateable Value Is £12,250, Therefore Making The Approximate Rates Payable £6,113 Per Annum For 2025/26.

Occupiers May Be Eligible For Small Business Rates Relief If This Is The Only Property They Occupy And/or Any Other Properties They Occupy Have A Rateable Value Of Less Than £2,900 Each. Qualifying Ratepayers Will Pay No Rates On Properties With Rateable Values Up To £12,000 With A Tapered Relief Of Between 100% And 0% For Properties With Rateable Values Between £12,001 And £15,000.

Interested Parties Are Advised To Confirm The Rating Liability With South Hams Council.

Services

We Understand That Mains Electricity, Water And Drainage Are Connected To The Property However These Services Have Not Been Tested By The Agents. Interested Parties Should Make Their Own Enquiries.

Epc

D (97)

Legal Fees

Each Party To Be Responsible For Their Own Legal Fees In Relation To This Transaction.

Vat

We Are Advised That The Property Has Not Been Elected For Vat And Will Not Therefore Be Payable On The Purchase Price.
Vickery Holman
Vickery Holman View all properties
Industrial Unit For Sale, Ivybridge
£235,000 Freehold

Unit 2,5 Cadleigh Close, Ivybridge, PL21 9GB

Industrial Unit · Under Offer · 1,808 sq ft

Property ID: 147355

Send Enquiry
Vickery Holman
Vickery Holman View all properties

Make an Enquiry

Boxpod will only use your details to send an enquiry to the advertiser and prompt a response. By clicking Send Enquiry, you agree to Boxpod's Privacy Policy.

Make an Enquiry

Vickery Holman
Vickery Holman

Boxpod will only use your details to send an enquiry to the advertiser and prompt a response. By clicking Send Enquiry, you agree to Boxpod's Privacy Policy.

Call