Back to results

Office For Sale, Truro

Office in Truro
Office in Truro
Office in Truro
Office in Truro
£225,000 Freehold

12 Frances Street, Truro, TR1 3DN

Type Office
Status Available
Size 0 sq ft

Property Details

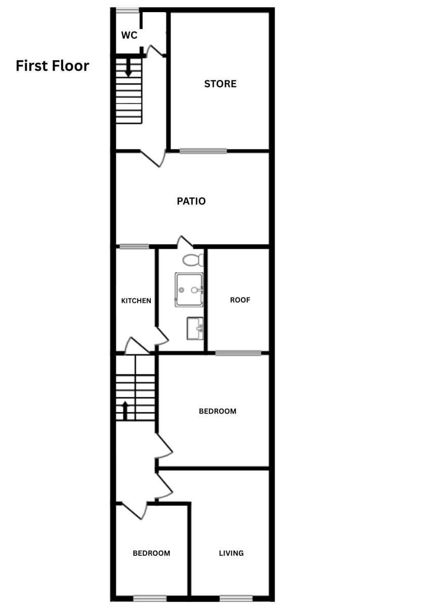
Truro City Centre Shop And Flat For Sale
Central Location In Truro's Busy City Centre, Close To Main Public Car Parks And City-centre Amenities
Freehold Property Comprising Retail Shop, Garage, Parking And A Self Contained Two-bedroom Flat With Roof Terrace
Shop Offered With Full Vacant Possession
First-floor Flat Let On An Ast At £9,000 Per Annum
Flat Includes 2 Bedrooms, Lounge, Kitchen And Shower Room
Rear Access Available
Epc Ratings - Shop C - Flat D
Scott Burridge Commercial LLP
Scott Burridge Commercial LLP View all properties
Office For Sale, Truro
£225,000 Freehold

12 Frances Street, Truro, TR1 3DN

Office · Available · 0 sq ft

Property ID: 148712

Send Enquiry
Scott Burridge Commercial LLP
Scott Burridge Commercial LLP View all properties

Make an Enquiry

Boxpod will only use your details to send an enquiry to the advertiser and prompt a response. By clicking Send Enquiry, you agree to Boxpod's Privacy Policy.

Make an Enquiry

Scott Burridge Commercial LLP
Scott Burridge Commercial LLP

Boxpod will only use your details to send an enquiry to the advertiser and prompt a response. By clicking Send Enquiry, you agree to Boxpod's Privacy Policy.

Call