Back to results

Industrial Unit For Sale, Walton

Industrial Unit in Walton
Industrial Unit in Walton
Industrial Unit in Walton
Industrial Unit in Walton
£250,000 Freehold

3 Creeches Lane, Walton, BA16 9RR

Type Industrial Unit
Status Available
Size 2,300 sq ft

Key Features

  • Versatile Workshop/Warehouse
  • Additional 2 offices
  • Previously Motor Repairs/Car Garage
  • Ample Parking
  • May offer Scope for Further Development
  • No VAT

Property Details

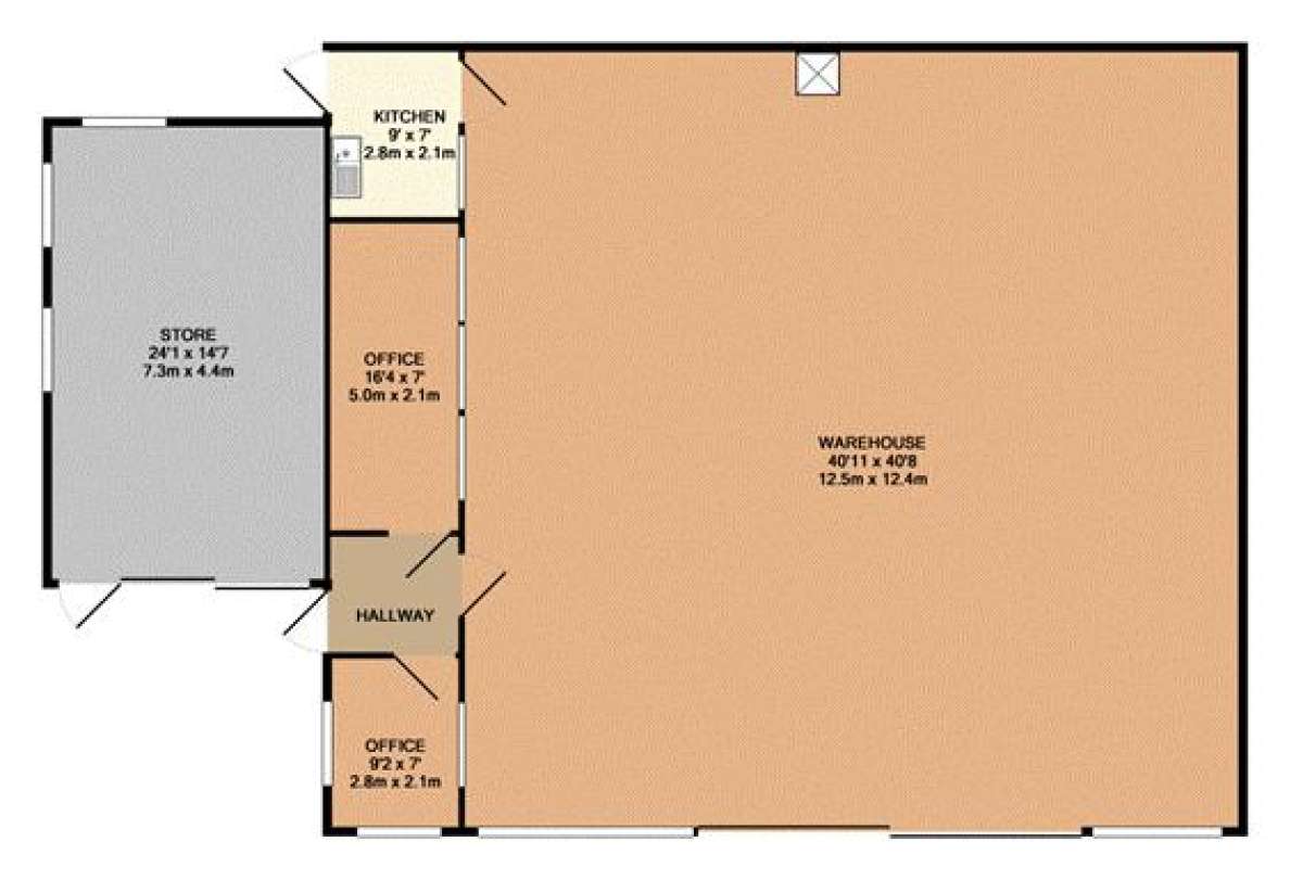
A versatile workshop/warehouse building with ancillary office accommodation, extending to approximately 2,300sqft GIA, and good sized yard to the front with a plot size of approximately 0.19 acres.


Currently occupied for storage and vehicle repairs the property has historically been used as a car garage and general warehousing depot. The property would suit a continued commercial workshop or similar use but may offer scope for redevelopment opportunities, STPP.

Use & Planning: Parties must satisfy themselves with regard to any existing, historic or potential planning matters. The building is currently used for storage and repair of vehicles.

A Versatile Workshop/warehouse Building With Ancillary Office Accommodation, Extending To Approximately 2,300sqft Gia, And Good Sized Yard To The Front With A Plot Size Of Approximately 0.19 Acres.


Currently Occupied For Storage And Vehicle Repairs The Property Has Historically Been Used As A Car Garage And General Warehousing Depot. The Property Would Suit A Continued Commercial Workshop Or Similar Use But May Offer Scope For Redevelopment Opportunities, Stpp.

Use & Planning: Parties Must Satisfy Themselves With Regard To Any Existing, Historic Or Potential Planning Matters. The Building Is Currently Used For Storage And Repair Of Vehicles.

Situated Off Creeches Lane, Walton Less Than 1 Mile From Street, Somerset. The A39 Which Leads Through Walton Links To The M5 And Bridgwater. What3words Location: ///mixer.pillow.fulfilled

The Principal Building Measures 12.5m Deep X 14.5m Wide (181.25sqm/1,950sqft) To Include The Workshop, Two Offices And A Kitchenette. 4.6m To The Ridge Height. Sliding Doors To The Front.

We Are Informed That Mains Water And Electricity Are Connected. Lpg Space Heater Within The Workshop. Private Drainage. Prospective Purchasers Should Satisfy Themselves In This Regard.

By Appointment Only Through The Sole Agents Cooper And Tanner 1908 Limited - 03450 34 77 58

We Understand That The Property Is Not Elected For Vat.

Agents Note: Photographs Taken During 2019 Marketing. To Be Updated.

Freehold

Versatile Workshop/warehouse

Additional 2 Offices

Previously Motor Repairs/car Garage

Ample Parking

May Offer Scope For Further Development
Cooper and Tanner
Cooper and Tanner View all properties
Industrial Unit For Sale, Walton
£250,000 Freehold

3 Creeches Lane, Walton, BA16 9RR

Industrial Unit · Available · 2,300 sq ft

Property ID: 150734

Send Enquiry
Cooper and Tanner
Cooper and Tanner View all properties

Make an Enquiry

Boxpod will only use your details to send an enquiry to the advertiser and prompt a response. By clicking Send Enquiry, you agree to Boxpod's Privacy Policy.

Make an Enquiry

Cooper and Tanner
Cooper and Tanner

Boxpod will only use your details to send an enquiry to the advertiser and prompt a response. By clicking Send Enquiry, you agree to Boxpod's Privacy Policy.

Call