Back to results

Industrial Unit To Let, Ivybridge

Industrial Unit in Ivybridge
Industrial Unit in Ivybridge
Industrial Unit in Ivybridge
Industrial Unit in Ivybridge
£12,500 / month
£150,000 pa

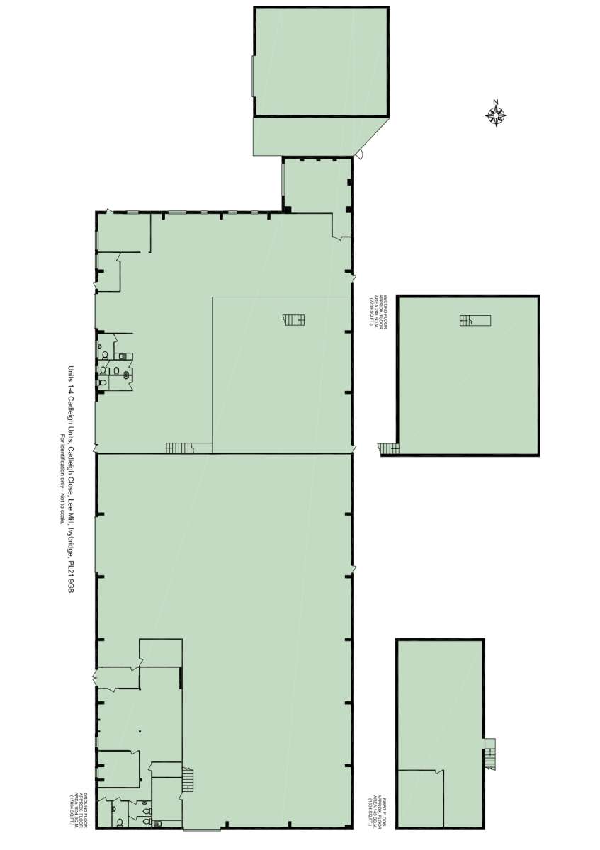
1-3 Cadleigh Close, Ivybridge, PL21 9GB

Type Industrial Unit
Status Available
Size 18,513 sq ft

Key Features

  • SUBSTANTIAL DETACHED INDUSTRIAL UNIT WITH TARMAC YARD
  • May Split with sizes from 8,185 - 18,073 SqFt ( 1,679 SqM )
  • DESIRABLE INDUSTRIAL / DISTRIBUTION SITE IN LEE MILL
  • OFFICES, WELFARE AND ADDITIONAL WORKSHOP
  • MINIMUM EAVES 5.22M
  • EPC A (23)

Property Details

Lee Mill Industrial Estate, Situated Near Ivybridge, Is Generally Regarded As A Leading Industrial Estate In The South Hams. Plymouth Is Located 10 Miles To The West & Exeter 30 Miles To The East, With Excellent Road Access Via The A38.

the Warehouse Has A Min.eaves Height Of 5.22m (7.83m To Underside Of Apex) Giving Excellent Height For Modern Storage & Distribution Users. The Unit Is Split Internally But Could Be Opened If Required. Access Is Via 3 Sectional Goods Loading Doors Which Open Directly To Delivery Yard. External Dock Leveller Which Unloads Into Roller Shutter To Eastern Gable Wall. Warehouse 1&2 Offers Industrial Space With Office & Is Currently Fitted With A Storage Mezzanine To One Side, Approx.2,259sq.ft / 210sq.m. Warehouse 3 Benefits From A Warehouse With Modern Office Currently Designed As Open Plan Space With Managers Office, Staff Welfare, Wcs, With Mezzanine Over The Office. There Is A Further Detached Workshop Suitable For A Variety Of Uses
Listers Property Consultants Ltd
Listers Property Consultants Ltd View all properties
Industrial Unit To Let, Ivybridge
£12,500 / month
£150,000 pa

1-3 Cadleigh Close, Ivybridge, PL21 9GB

Industrial Unit · Available · 18,513 sq ft

Property ID: 151289

Send Enquiry
Listers Property Consultants Ltd
Listers Property Consultants Ltd View all properties

Make an Enquiry

Boxpod will only use your details to send an enquiry to the advertiser and prompt a response. By clicking Send Enquiry, you agree to Boxpod's Privacy Policy.

Make an Enquiry

Listers Property Consultants Ltd
Listers Property Consultants Ltd

Boxpod will only use your details to send an enquiry to the advertiser and prompt a response. By clicking Send Enquiry, you agree to Boxpod's Privacy Policy.

Call