Industrial Unit To Let, Christchurch
3 photos
£3,875 / month
£46,500 pa
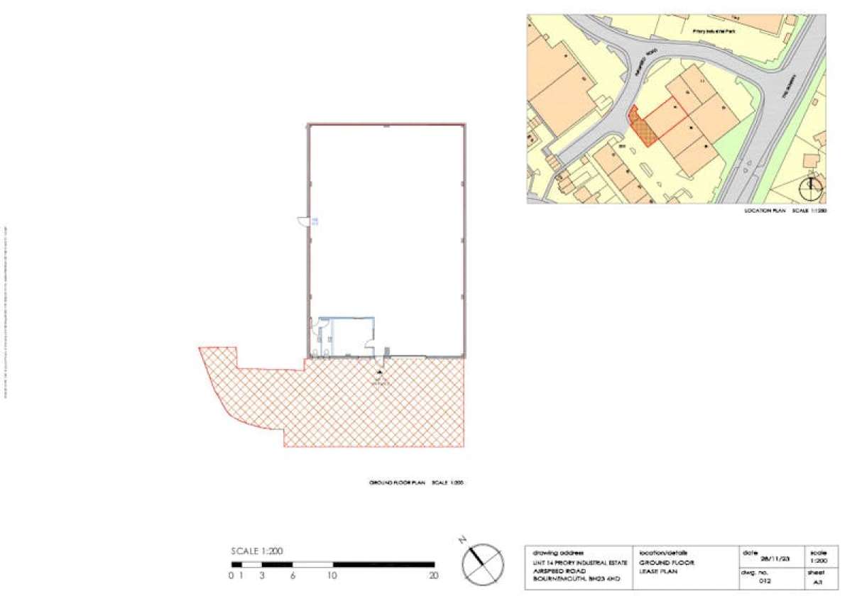
Unit 14 Priory Industrial Park, Christchurch, BH23 4HE
Type
Industrial Unit
Status
Available
Size
3,712 sq ft
Key Features
- Unit to be refurbished
- 8 car parking spaces (if double parked)
- Ground floor office
- 5.15m internal eaves height
Property Details
Priory Industrial Park Comprises Of 21 Units Totalling Approx. 123,000 Sq Ft.
Unit 14 Is An End-terrace Industrial/warehouse Premises Of Brick Outer, Blockwork Inner Wall Construction Supported Upon A Steel Portal Frame, With Steel Cladding To The Upper Elevations And A Steel Clad Insulated Roof. The Ground Floor Is Concrete, The Internal Eaves Height Is Approx. 5.15m And The Loading Door Measures Approx. 3.4m W X 3.9m H. Internally, There Is A Personnel Door Leading To The Ground Floor Office Which Will Benefit From Carpets, Electric Heating And Led Lighting. There Are Male And Female W.c Facilities And 3 Phase Electricity Is Available. The Unit Will Be Refurbished To The Same Specification As Unit 15.
Externally, There Is A Concrete Forecourt Providing Loading Access And 8 Car Parking Spaces (if Double Parked).
Unit 14 Is An End-terrace Industrial/warehouse Premises Of Brick Outer, Blockwork Inner Wall Construction Supported Upon A Steel Portal Frame, With Steel Cladding To The Upper Elevations And A Steel Clad Insulated Roof. The Ground Floor Is Concrete, The Internal Eaves Height Is Approx. 5.15m And The Loading Door Measures Approx. 3.4m W X 3.9m H. Internally, There Is A Personnel Door Leading To The Ground Floor Office Which Will Benefit From Carpets, Electric Heating And Led Lighting. There Are Male And Female W.c Facilities And 3 Phase Electricity Is Available. The Unit Will Be Refurbished To The Same Specification As Unit 15.
Externally, There Is A Concrete Forecourt Providing Loading Access And 8 Car Parking Spaces (if Double Parked).
Location
Vail Williams
View all properties
Make an Enquiry
Vail Williams