Other To Let, London

Other in London
Other in London
Other in London
Other in London
£1,250 / month
£15,000 pa

Fenchurch Street Railway Station,Fenchurch Place, London, EC3M 4AJ

Type Other
Status Available
Size 123 sq ft

Key Features

  • Size 11 Sq M (123 Sq Ft)
  • 10.44 million passengers per annum
  • Suitable for a number of uses

Property Details

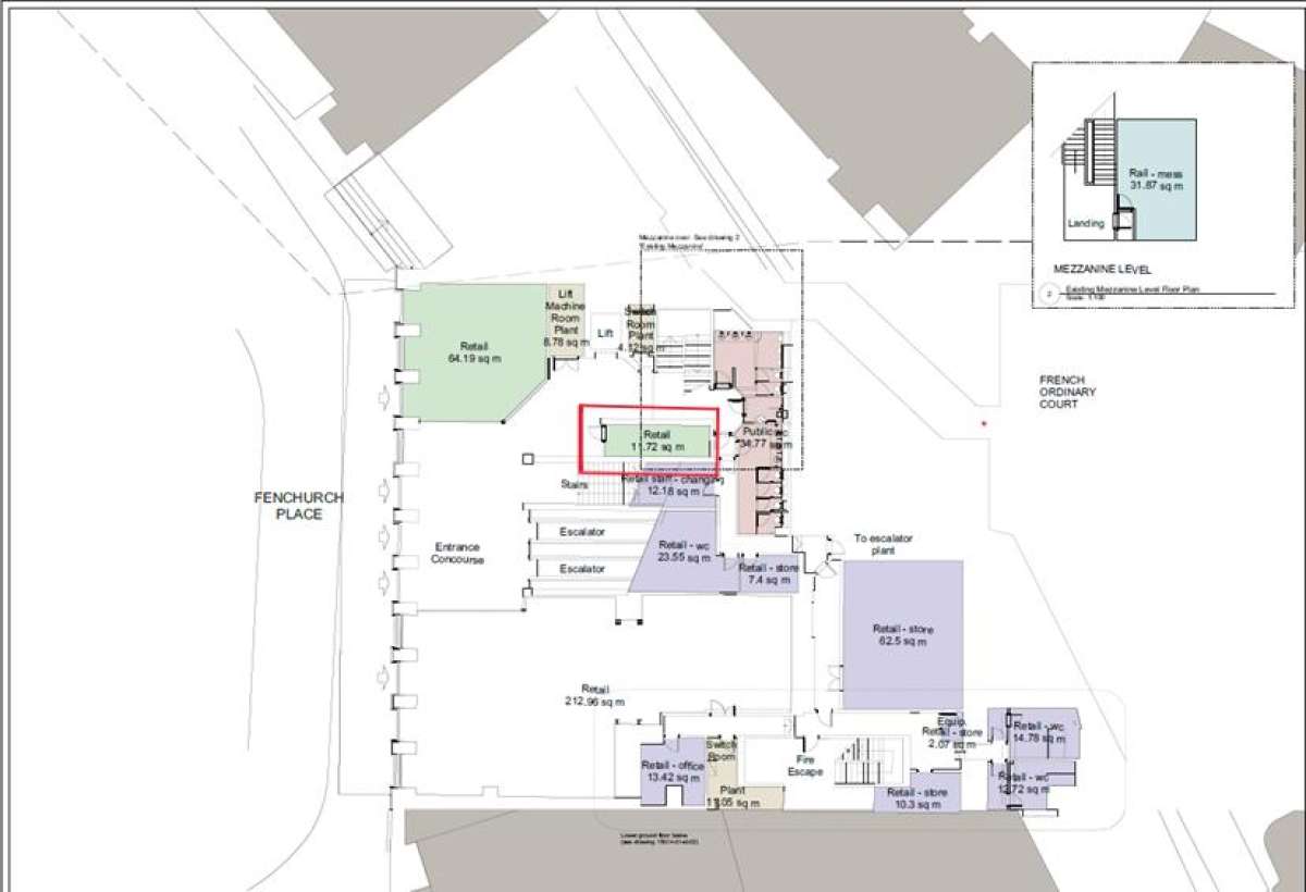
The Unit Is Within The Station On The Ground Floor Adjacent To The Lift, Escalator And Burger King With Other Tenants At The Station Including Marks And Spencer, Simply Food, Costa, Ismash, Coffeestation And Sweet Express. The Unit Is Small And Rectangular In Shape With A Roller Shutter Shop Front. The Unit Benefits From Services Including Electricity.

Size 11 Sq M (123 Sq Ft)

10.44 Million Passengers Per Annum

Suitable For A Number Of Uses
LSH-London E1
LSH-London E1 View all properties
Other To Let, London
£1,250 / month
£15,000 pa

Fenchurch Street Railway Station,Fenchurch Place, London, EC3M 4AJ

Other · Available · 123 sq ft

Property ID: 153599

Send Enquiry
LSH-London E1
LSH-London E1 View all properties

Make an Enquiry

Boxpod will only use your details to send an enquiry to the advertiser and prompt a response. By clicking Send Enquiry, you agree to Boxpod's Privacy Policy.

Make an Enquiry

LSH-London E1
LSH-London E1

Boxpod will only use your details to send an enquiry to the advertiser and prompt a response. By clicking Send Enquiry, you agree to Boxpod's Privacy Policy.

Call