Retail/Shop To Let, Birmingham
4 photos
£833 / month
£10,000 pa
Cafe Birmingham Wholesale Market The Hub,Nobel Way, Birmingham, B6 7EU
Type
Retail/Shop
Status
Available
Size
1,237 sq ft
Key Features
- Less than 3 miles north of Birmingham city centre
- Purpose built facility
- 78 individual sales units with rear loading
- Secure with security access
- Totally managed environment
- The Wholesale Market is primarily a nighttime operation
Property Details
The Hub Is Situated Less Than 3 Miles North Of Birmingham City Centre And Within Easy Access Of The A34, A38 Aston Expressway And M6 Motorway.
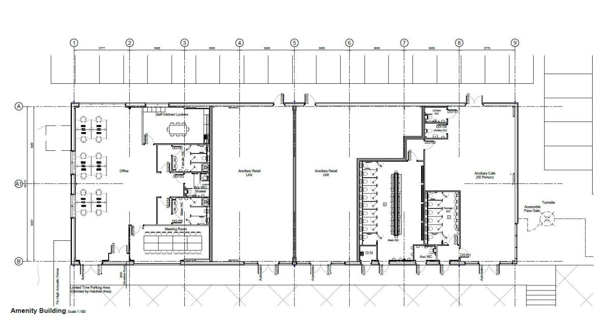
The New Purpose Built Birmingham Wholesale Markets Comprise 78 Sales Units In Addition To An Amenity Block Providing A Café Unit, Two Retail Units And Management Office.
The Wholesale Market Is Primarily A Night-time Operation Serving The Delivery And Sales Of Wholesale Fruit/veg/meat/fish/flowers. The Opening Hours Of The Cafe Will Have To Coincide With The Opening Hours Of The Market.
The New Purpose Built Birmingham Wholesale Markets Comprise 78 Sales Units In Addition To An Amenity Block Providing A Café Unit, Two Retail Units And Management Office.
The Wholesale Market Is Primarily A Night-time Operation Serving The Delivery And Sales Of Wholesale Fruit/veg/meat/fish/flowers. The Opening Hours Of The Cafe Will Have To Coincide With The Opening Hours Of The Market.
Location
LSH-Birmingham
View all properties
Make an Enquiry
LSH-Birmingham