Back to results

Retail/Shop To Let, Bingley

Retail/Shop in Bingley
Retail/Shop in Bingley
Retail/Shop in Bingley
Retail/Shop in Bingley
POA

Bingley Railway Station,Wellington Street, Bingley, BD16 2NA

Type Retail/Shop
Status Available
Size 788 sq ft

Key Features

  • Annual Station Footfall of 938,782.
  • Regular services to Leeds, Bradford and Skipton
  • Situated fronting the station forecourt and car park
  • Undergoing refurbishment
  • Close to the town centre
  • Suitable for retail, catering, licensed bar

Property Details

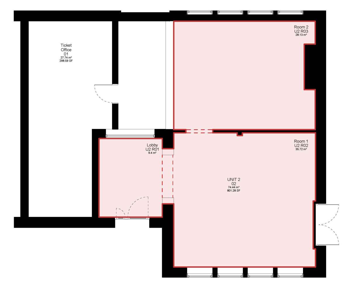
On Behalf Of Northern, An Opportunity Exists At Bingley Station Comprising A Single Storey Stone Building Extending To Three Rooms. Access Is Gained Via A Double Door At The Front Of The Main Station Building.

The Premises Have Previously Been Used For The Sale And Display Of Retail Goods. Northern Are Inviting Business Proposals For A Coffee Shop, Catering, Licensed Bar Or Other Business Use.
Retail/Shop To Let, Bingley
POA

Bingley Railway Station,Wellington Street, Bingley, BD16 2NA

Retail/Shop · Available · 788 sq ft

Property ID: 57427

Send Enquiry

Make an Enquiry

Boxpod will only use your details to send an enquiry to the advertiser and prompt a response. By clicking Send Enquiry, you agree to Boxpod's Privacy Policy.

Make an Enquiry

LSH-Leeds
LSH-Leeds

Boxpod will only use your details to send an enquiry to the advertiser and prompt a response. By clicking Send Enquiry, you agree to Boxpod's Privacy Policy.

Call