Back to results

Industrial Unit For Sale, Haywards Heath

Industrial Unit in Haywards Heath
Industrial Unit in Haywards Heath
Industrial Unit in Haywards Heath
Industrial Unit in Haywards Heath
POA

Tungsten Park, Haywards Heath, RH17 6BA

Type Industrial Unit
Status Sold
Size 10,000 - 40,000 sq ft

Property Details

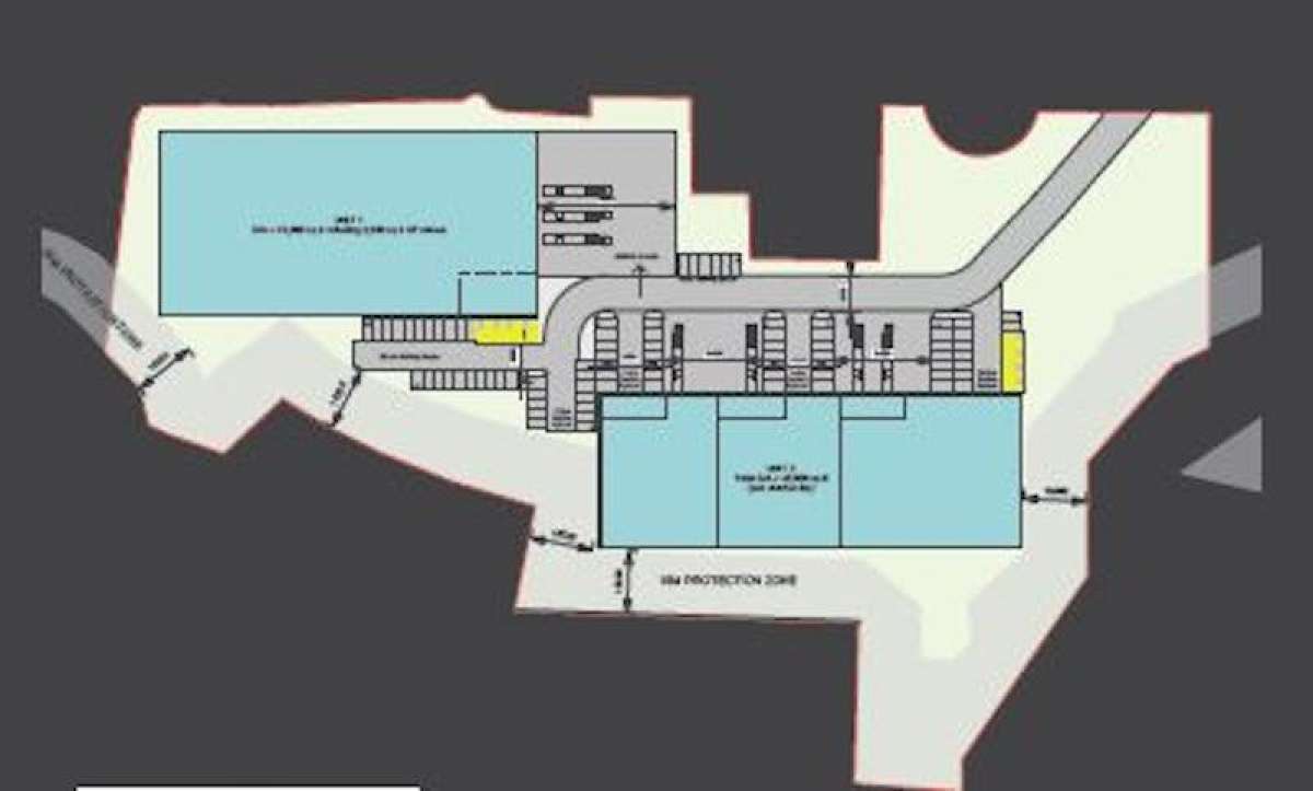
Two New Units To Be Constructed And Ready For Occupation Q3 2018. Unit 1 Extends To 4,000 Sq M (43,000 Sq Ft) And Is Available As A Whole Unit. Unit 2 Extends To 3,800 Sq M (40,960 Sq Ft) And Is Available As A Whole Or In Part From 1,208 Sq M (13,000 Sq Ft) Upwards. The Units Will Built To Institutionally Acceptable Design And Specification As Follows: • 8m Clear Height To Underside Of Haunch • 50 Kn/m2 Warehouse Floor Loading • Unit 1 - 3 X Loading Doors • Unit 2 - 4 X Loading Doors • Ample Onsite Car Parking • Good Loading / Hgv Circulation • Institutional Standard Steel Frame & Clad Construction • Landscaped Surrounds • Potential For Creating Secure Yards • Units Divisable From 1,208 Sq M (13,000 Sq Ft)
Vail Williams
Vail Williams View all properties
Industrial Unit For Sale, Haywards Heath
POA

Tungsten Park, Haywards Heath, RH17 6BA

Industrial Unit · Sold · 10,000 - 40,000 sq ft

Property ID: 69697

Send Enquiry
Vail Williams
Vail Williams View all properties

Make an Enquiry

Boxpod will only use your details to send an enquiry to the advertiser and prompt a response. By clicking Send Enquiry, you agree to Boxpod's Privacy Policy.

Make an Enquiry

Vail Williams
Vail Williams

Boxpod will only use your details to send an enquiry to the advertiser and prompt a response. By clicking Send Enquiry, you agree to Boxpod's Privacy Policy.

Call